15/21
Paylaş
Resmi Orjinal Boyutunda Göster
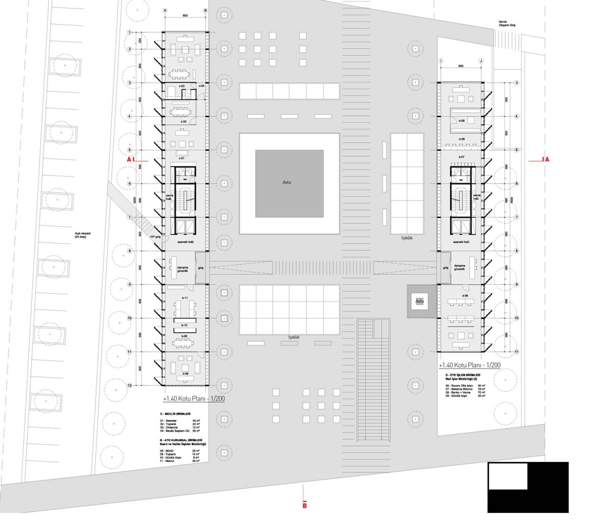
Katılımcı, MVDY Mimarlık, Adana Ticaret Odası Yeni Hizmet Binası Ulusal Mimari Proje Yarışması
Project Location: Adana
Project Office: MVDY Mimarlık
Project Type: Offices
Tasarım Ekibi: Mert Velipaşaoğlu, Tuberk Altuntaş, Yiğit Yalgın
Project Start Date: 2014
Project End Date: 2014