20/21
Paylaş
Resmi Orjinal Boyutunda Göster
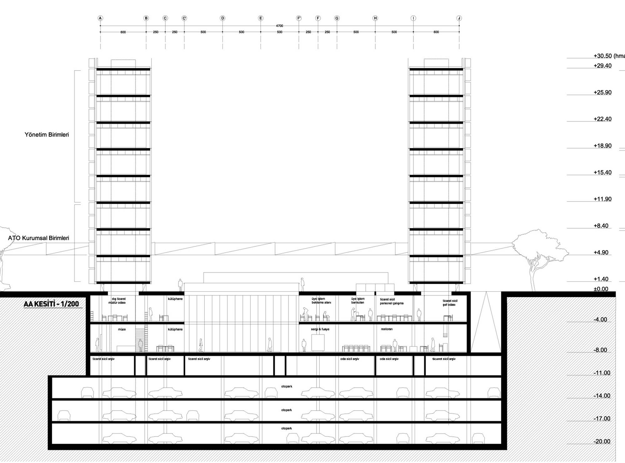
Katılımcı, MVDY Mimarlık, Adana Ticaret Odası Yeni Hizmet Binası Ulusal Mimari Proje Yarışması
Proje Yeri: Adana
Proje Ofisi: MVDY Mimarlık
Proje Tipi: Ofis
Tasarım Ekibi: Mert Velipaşaoğlu, Tuberk Altuntaş, Yiğit Yalgın
Proje Başlangıç Yılı: 2014
Proje Bitiş Yılı: 2014