38/44
Paylaş
Resmi Orjinal Boyutunda Göster
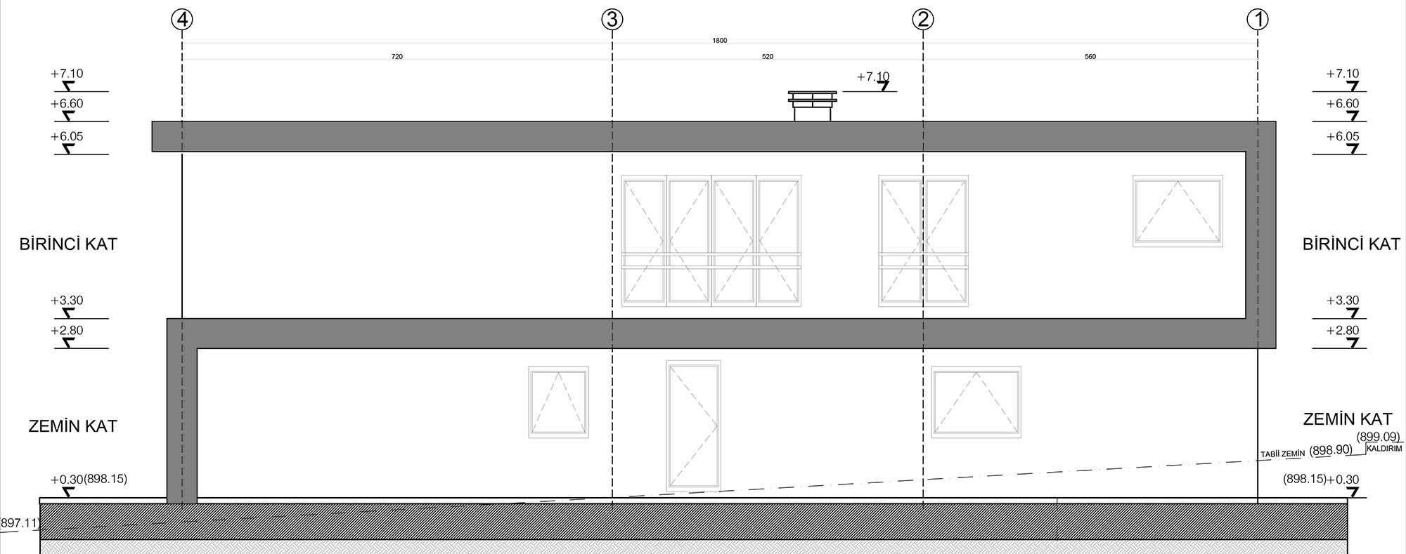
Bülbül Villası
Project Location: Uşak
Project Office: Berk Yapı Mimarlık
Project Type: Single House
Proje Tipi Grubu: Konut
Tasarım Ekibi: Tansu Oktay, Hayrullah Oktay
Employer: Fergül Eral Bülbül
Ana Yüklenici: Berk Yapı Mimarlık
Structural Project: Hakan Yıldız
Mechanical Project: Yüksel Kalıpçı, Dinçer Özkaba
Electrical Project: Mehmet Perçin
Project Start Date: 2018
Project End Date: 2018
Construction Start Date: 2019
Construction End Date: 2020
Building Plot Area: 931 m2
Total Construction Area: 374 m2