44/44
Paylaş
Resmi Orjinal Boyutunda Göster
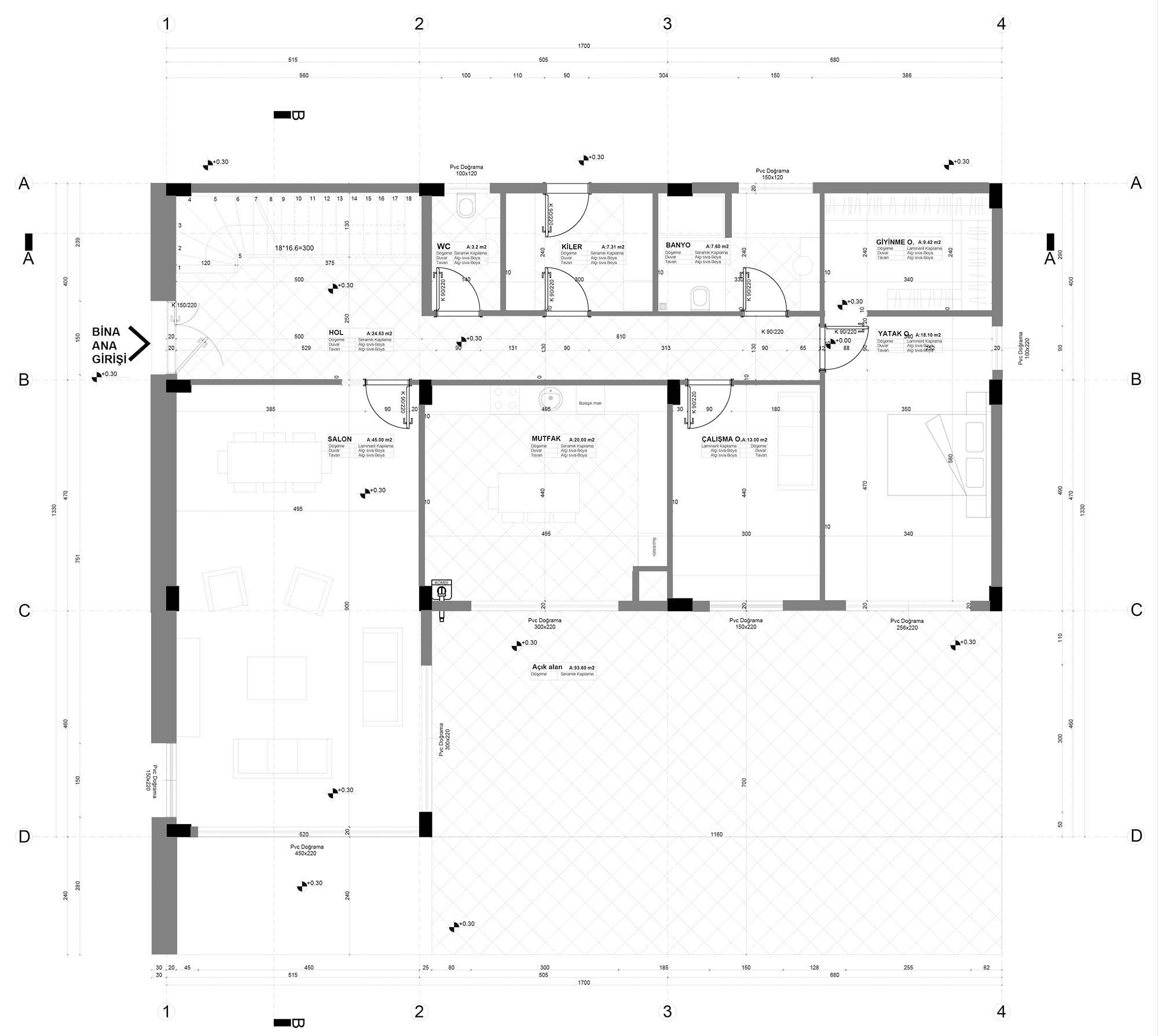
Bülbül Villası
Proje Yeri: Uşak
Proje Ofisi: Berk Yapı Mimarlık
Proje Tipi: Tek Ev / Villa
Proje Tipi Grubu: Konut
Tasarım Ekibi: Tansu Oktay, Hayrullah Oktay
İşveren: Fergül Eral Bülbül
Ana Yüklenici: Berk Yapı Mimarlık
Statik Projesi: Hakan Yıldız
Mekanik Projesi: Yüksel Kalıpçı, Dinçer Özkaba
Elektrik Projesi: Mehmet Perçin
Proje Başlangıç Yılı: 2018
Proje Bitiş Yılı: 2018
İnşaat Başlangıç Yılı: 2019
İnşaat Bitiş Yılı: 2020
Arsa Alanı: 931 m2
Toplam İnşaat Alanı: 374 m2