32/34
Paylaş
Resmi Orjinal Boyutunda Göster
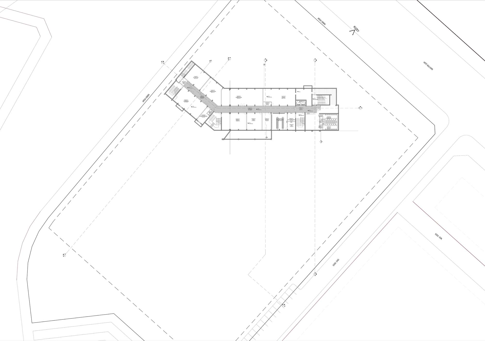
Gazi Anadolu Lisesi
Proje Yeri: Ankara, Çankaya
Proje Ofisi: AURA Design Studio
Proje Tipi: Lise / Ortaöğretim
Proje Tipi Grubu: Eğitim
Tasarım Ekibi: Filiz Cingi Yurdakul
İşveren: Türkiye Odalar ve Borsalar Birliği (TOBB)
Yardımcı: Çağlar Gümüş, Mehmet Işıkdemir, Nuri Eren Sepetçi
Ana Yüklenici: Ali Rıza Çelik, MBS Yapı AŞ
Alt Yüklenici: Tür-Sum İnşaat
Proje Yöneticisi: Filiz Cingi Yurdakul
Statik Projesi: Murat Aydın Mühendislik
Mekanik Projesi: SLM
Elektrik Projesi: SLM
Tesisat Projesi: SLM
Çelik Projesi: Murat Aydın Mühendislik
Altyapı Projesi: Lagün Mühendislik
Yangın Tahliye Projesi: Zeytin Danışmanlık
Fotoğraf: Fethi Mağara
Şantiye Yöneticisi: Mustafa Tekinel, Koray Yavaş
Proje Başlangıç Yılı: 2018
Proje Bitiş Yılı: 2018
İnşaat Başlangıç Yılı: 2019
İnşaat Bitiş Yılı: 2021
Arsa Alanı: 21.038 m2
Toplam İnşaat Alanı: 14.293 m2