33/34
Paylaş
Resmi Orjinal Boyutunda Göster
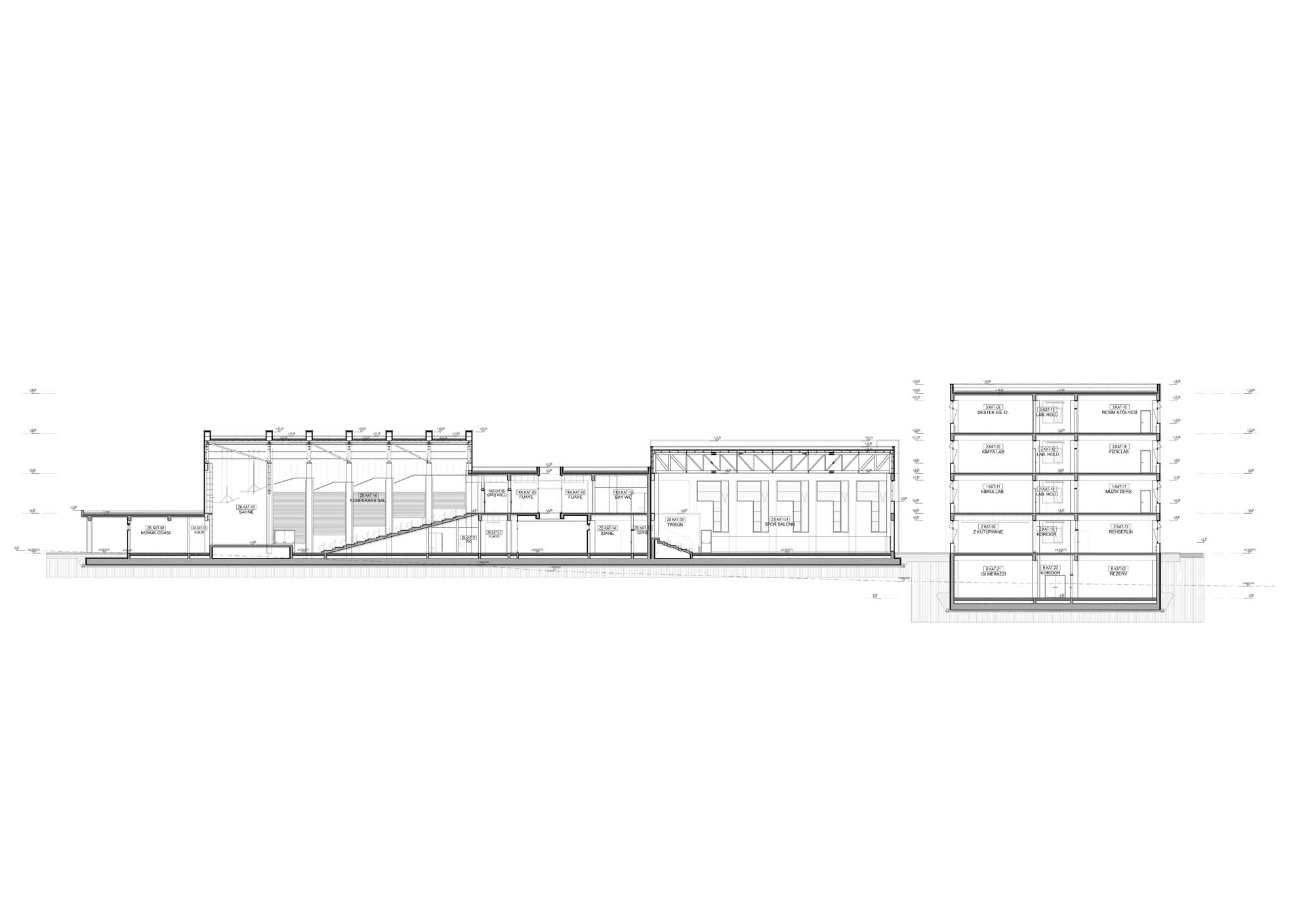
Gazi Anadolu Lisesi
Project Location: Ankara, Çankaya
Project Office: AURA Design Studio
Project Type: High School
Proje Tipi Grubu: Eğitim
Tasarım Ekibi: Filiz Cingi Yurdakul
Employer: Türkiye Odalar ve Borsalar Birliği (TOBB)
Yardımcı: Çağlar Gümüş, Mehmet Işıkdemir, Nuri Eren Sepetçi
Ana Yüklenici: Ali Rıza Çelik, MBS Yapı AŞ
Alt Yüklenici: Tür-Sum İnşaat
Projcet Manager: Filiz Cingi Yurdakul
Structural Project: Murat Aydın Mühendislik
Mechanical Project: SLM
Electrical Project: SLM
Plumbing Project: SLM
Çelik Projesi: Murat Aydın Mühendislik
Altyapı Projesi: Lagün Mühendislik
Yangın Tahliye Projesi: Zeytin Danışmanlık
Photography: Fethi Mağara
Construction Site Manager: Mustafa Tekinel, Koray Yavaş
Project Start Date: 2018
Project End Date: 2018
Construction Start Date: 2019
Construction End Date: 2021
Building Plot Area: 21.038 m2
Total Construction Area: 14.293 m2