21/28
Paylaş
Resmi Orjinal Boyutunda Göster
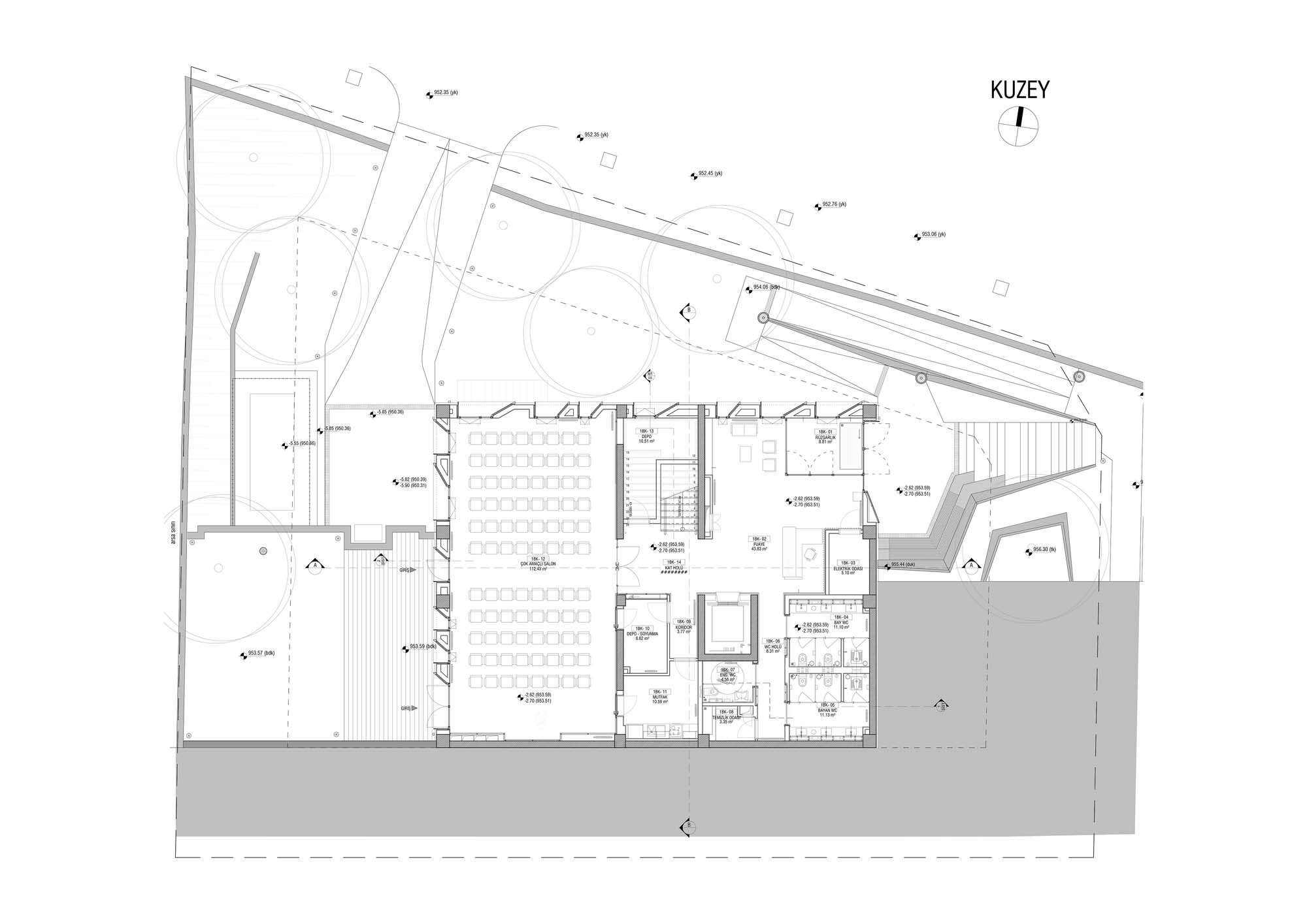
Öveçler Çankaya Evi
Project Location: Ankara, Çankaya
Project Office: AURA Design Studio
Project Type: Social Facility
Proje Tipi Grubu: Kamu
Tasarım Ekibi: Filiz Cingi Yurdakul
Employer: Çankaya Belediyesi
Yardımcı: Çağlar Gümüş, Mehmet Işıkdemir
Ana Yüklenici: Suphioğulları Mobilya İnşaat
Peyzaj Mimarlığı: Taps Proje
Projcet Manager: Filiz Cingi Yurdakul
Structural Project: Mustafa Toydemir Mühendislik
Mechanical Project: MTD Mühendislik
Electrical Project: Özer Mühendislik
Altyapı Projesi: Lagün Mühendislik
Photography: Duygu Tüntaş
Project Start Date: 2019
Project End Date: 2020
Construction Start Date: 2020
Construction End Date: 2021
Building Plot Area: 1.217 m2
Total Construction Area: 1.289 m2