22/28
Paylaş
Resmi Orjinal Boyutunda Göster
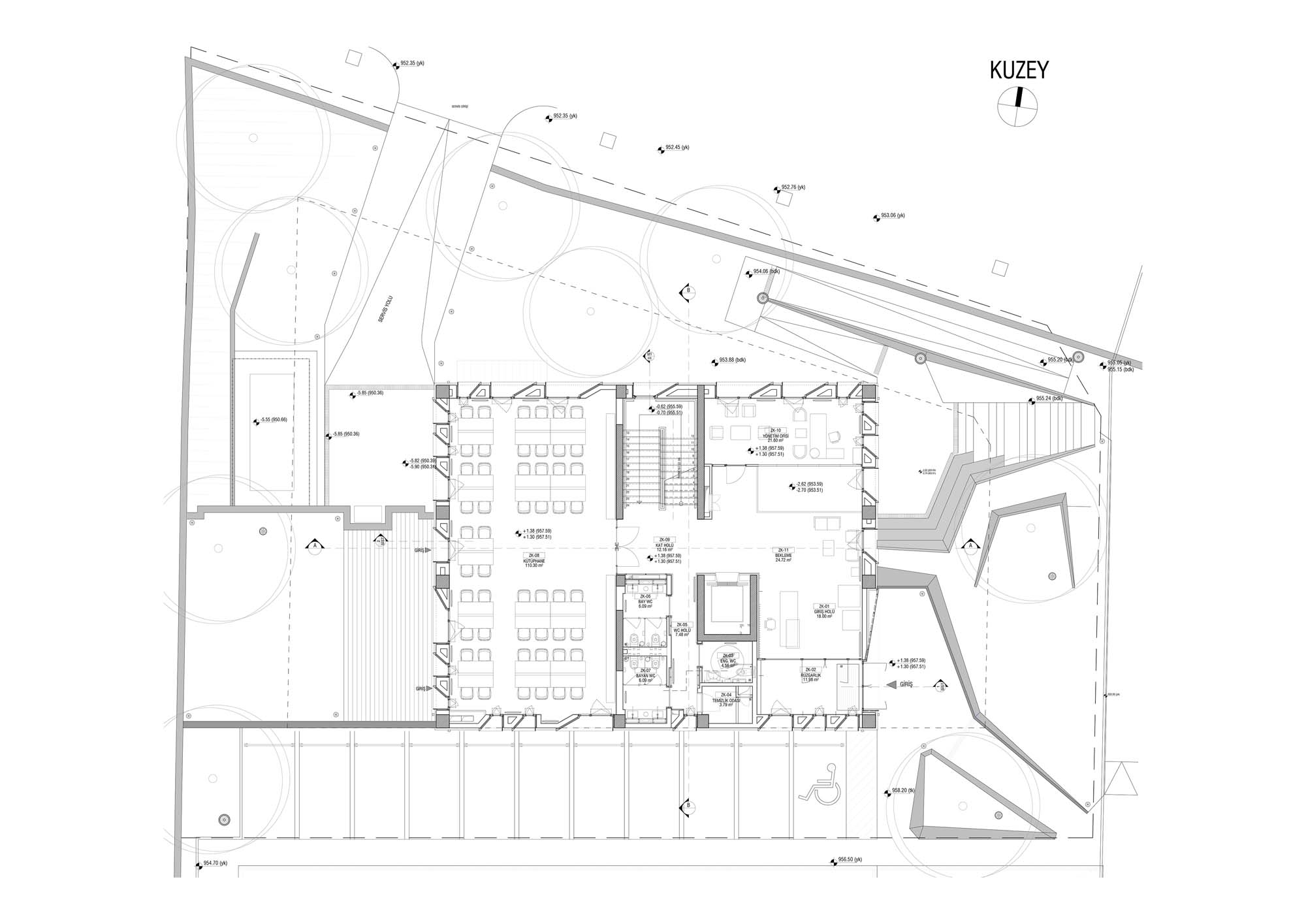
Öveçler Çankaya Evi
Proje Yeri: Ankara, Çankaya
Proje Ofisi: AURA Design Studio
Proje Tipi: Sosyal Tesis
Proje Tipi Grubu: Kamu
Tasarım Ekibi: Filiz Cingi Yurdakul
İşveren: Çankaya Belediyesi
Yardımcı: Çağlar Gümüş, Mehmet Işıkdemir
Ana Yüklenici: Suphioğulları Mobilya İnşaat
Peyzaj Mimarlığı: Taps Proje
Proje Yöneticisi: Filiz Cingi Yurdakul
Statik Projesi: Mustafa Toydemir Mühendislik
Mekanik Projesi: MTD Mühendislik
Elektrik Projesi: Özer Mühendislik
Altyapı Projesi: Lagün Mühendislik
Fotoğraf: Duygu Tüntaş
Proje Başlangıç Yılı: 2019
Proje Bitiş Yılı: 2020
İnşaat Başlangıç Yılı: 2020
İnşaat Bitiş Yılı: 2021
Arsa Alanı: 1.217 m2
Toplam İnşaat Alanı: 1.289 m2