10/12
Paylaş
Resmi Orjinal Boyutunda Göster
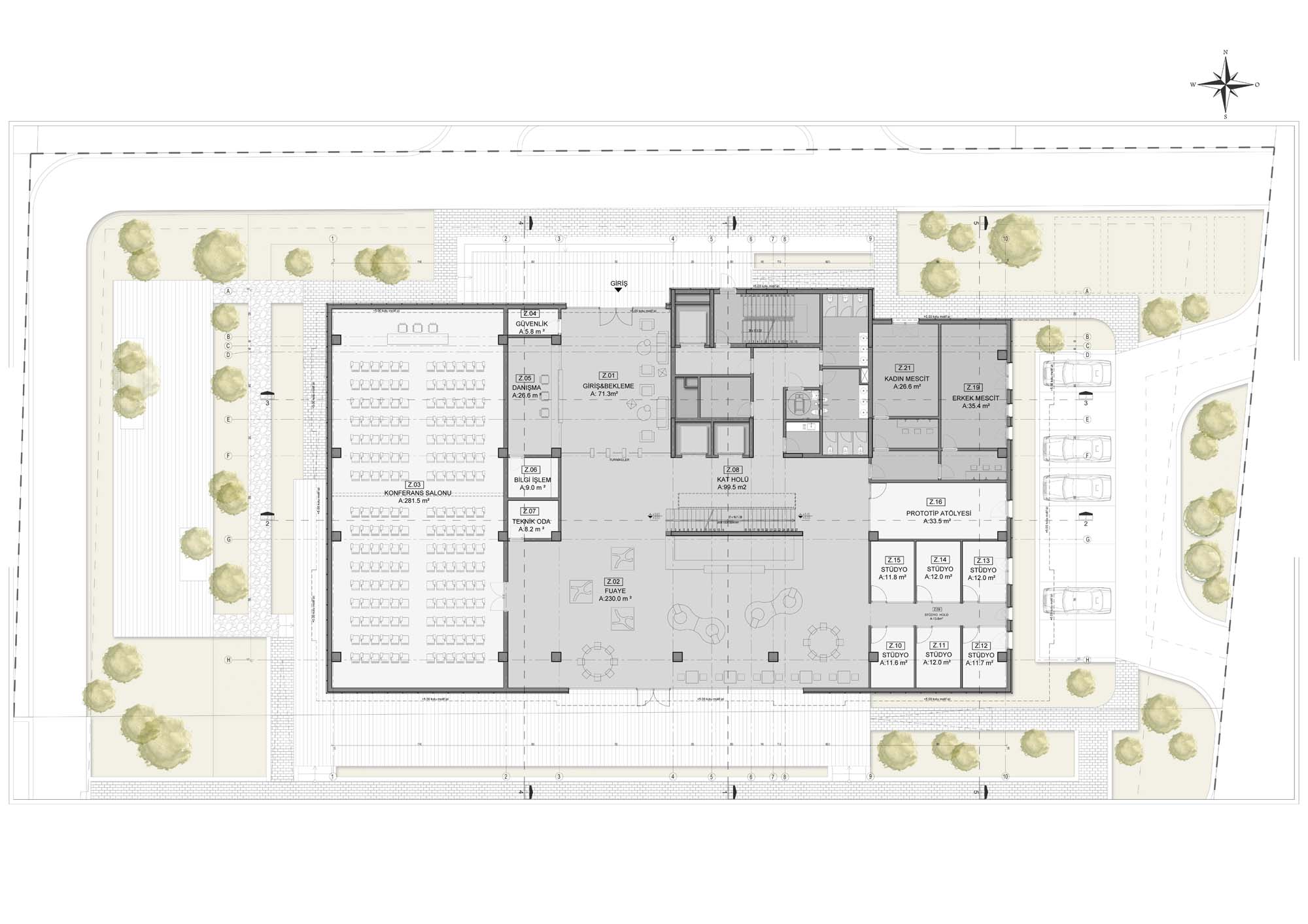
Batı Akdeniz Teknokenti Teknoloji Geliştirme Bölgesi İdare Binası ve Kuluçka Merkezi
Proje Yeri: Antalya
Proje Ofisi: Rem Mimarlık
Proje Tipi: Ofis, Kamu Yönetim Binası
Proje Tipi Grubu: Kamu
Tasarım Ekibi: Zeynep Esengil Ceylan, Ali Olgu Ceylan
İşveren: Antalya Teknokent AŞ
Yardımcı: Gizem Kara, Cansel Samur
Peyzaj Mimarlığı: 1/1 Landscape and Architecture
Aydınlatma Projesi: Sayın AŞ
Mekanik Projesi: Melant Mühendislik
Elektrik Projesi: Melant Mühendislik
Tesisat Projesi: Melant Mühendislik
Proje Başlangıç Yılı: 2019
Proje Bitiş Yılı: 2020
İnşaat Başlangıç Yılı: 2021
Toplam İnşaat Alanı: 7.165 m2