12/12
Paylaş
Resmi Orjinal Boyutunda Göster
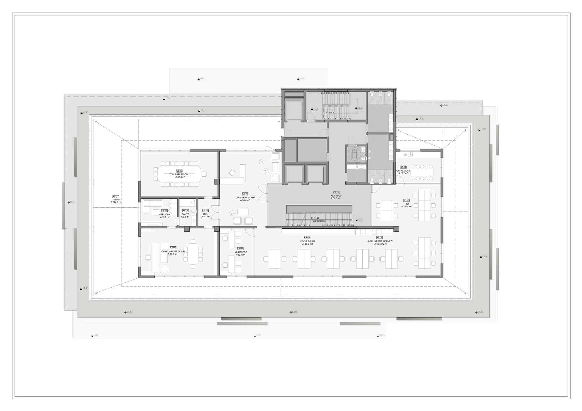
Batı Akdeniz Teknokenti Teknoloji Geliştirme Bölgesi İdare Binası ve Kuluçka Merkezi
Project Location: Antalya
Project Office: Rem Mimarlık
Project Type: Offices, Public Administration Building
Proje Tipi Grubu: Kamu
Tasarım Ekibi: Zeynep Esengil Ceylan, Ali Olgu Ceylan
Employer: Antalya Teknokent AŞ
Yardımcı: Gizem Kara, Cansel Samur
Peyzaj Mimarlığı: 1/1 Landscape and Architecture
Lighting Project: Sayın AŞ
Mechanical Project: Melant Mühendislik
Electrical Project: Melant Mühendislik
Plumbing Project: Melant Mühendislik
Project Start Date: 2019
Project End Date: 2020
Construction Start Date: 2021
Total Construction Area: 7.165 m2