19/28
Paylaş
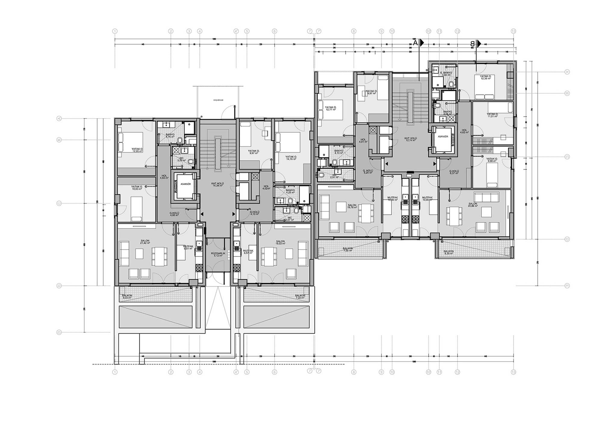
Resmi Orjinal Boyutunda Göster
Maltepe Başıbüyük Mahallesi Parsel 49
Project Location: İstanbul, Maltepe
Project Office: Atelye70 Planners and Architects
Project Type: Housing Complex
Proje Tipi Grubu: Konut
Tasarım Ekibi: Hüseyin Kaptan, Doğu Kaptan, Yonca Temizkan, Marco Lombardini, Fatma Gençdoğuş, Seda Sultansu, Marco Biozzi, Erkan Göray, Murat Er
Employer: Toplu Konut İdaresi (TOKİ), Maltepe Belediyesi
Consultant: Ekim Kaptan
Yardımcı: Başar Tosun, Buse Katana, Deniz Gürsu
Ana Yüklenici: Toplu Konut İdaresi (TOKİ), Maltepe Belediyesi
Peyzaj Mimarlığı: TÜMAŞ , Atelye70 Planners and Architects, Atelye70 Planners and Architects
Structural Project: TÜMAŞ
Mechanical Project: TÜMAŞ
Electrical Project: TÜMAŞ
Photography: Serdar Temizkan, Kıvanç Başak
Project Start Date: 2013
Project End Date: 2021
Construction Start Date: 2017
Construction End Date: 2021
Building Plot Area: 20.000 m2
Total Construction Area: 40.000 m²