23/28
Paylaş
Resmi Orjinal Boyutunda Göster
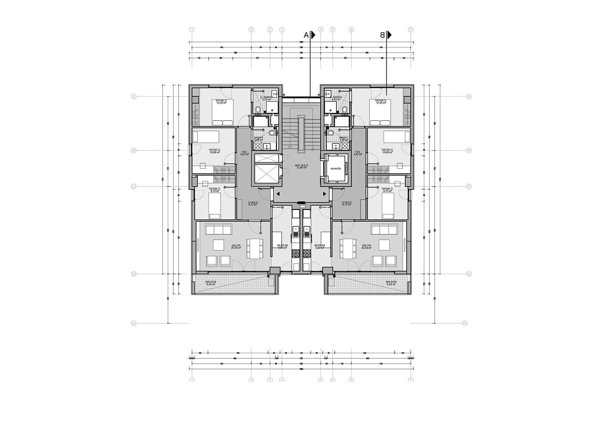
Maltepe Başıbüyük Mahallesi Parsel 49
Proje Yeri: İstanbul, Maltepe
Proje Ofisi: Atelye70 Planners and Architects
Proje Tipi: Konut Sitesi / Grubu
Proje Tipi Grubu: Konut
Tasarım Ekibi: Hüseyin Kaptan, Doğu Kaptan, Yonca Temizkan, Marco Lombardini, Fatma Gençdoğuş, Seda Sultansu, Marco Biozzi, Erkan Göray, Murat Er
İşveren: Toplu Konut İdaresi (TOKİ), Maltepe Belediyesi
Danışman: Ekim Kaptan
Yardımcı: Başar Tosun, Buse Katana, Deniz Gürsu
Ana Yüklenici: Toplu Konut İdaresi (TOKİ), Maltepe Belediyesi
Peyzaj Mimarlığı: TÜMAŞ , Atelye70 Planners and Architects, Atelye70 Planners and Architects
Statik Projesi: TÜMAŞ
Mekanik Projesi: TÜMAŞ
Elektrik Projesi: TÜMAŞ
Fotoğraf: Serdar Temizkan, Kıvanç Başak
Proje Başlangıç Yılı: 2013
Proje Bitiş Yılı: 2021
İnşaat Başlangıç Yılı: 2017
İnşaat Bitiş Yılı: 2021
Arsa Alanı: 20.000 m2
Toplam İnşaat Alanı: 40.000 m²