12/15
Paylaş
Resmi Orjinal Boyutunda Göster
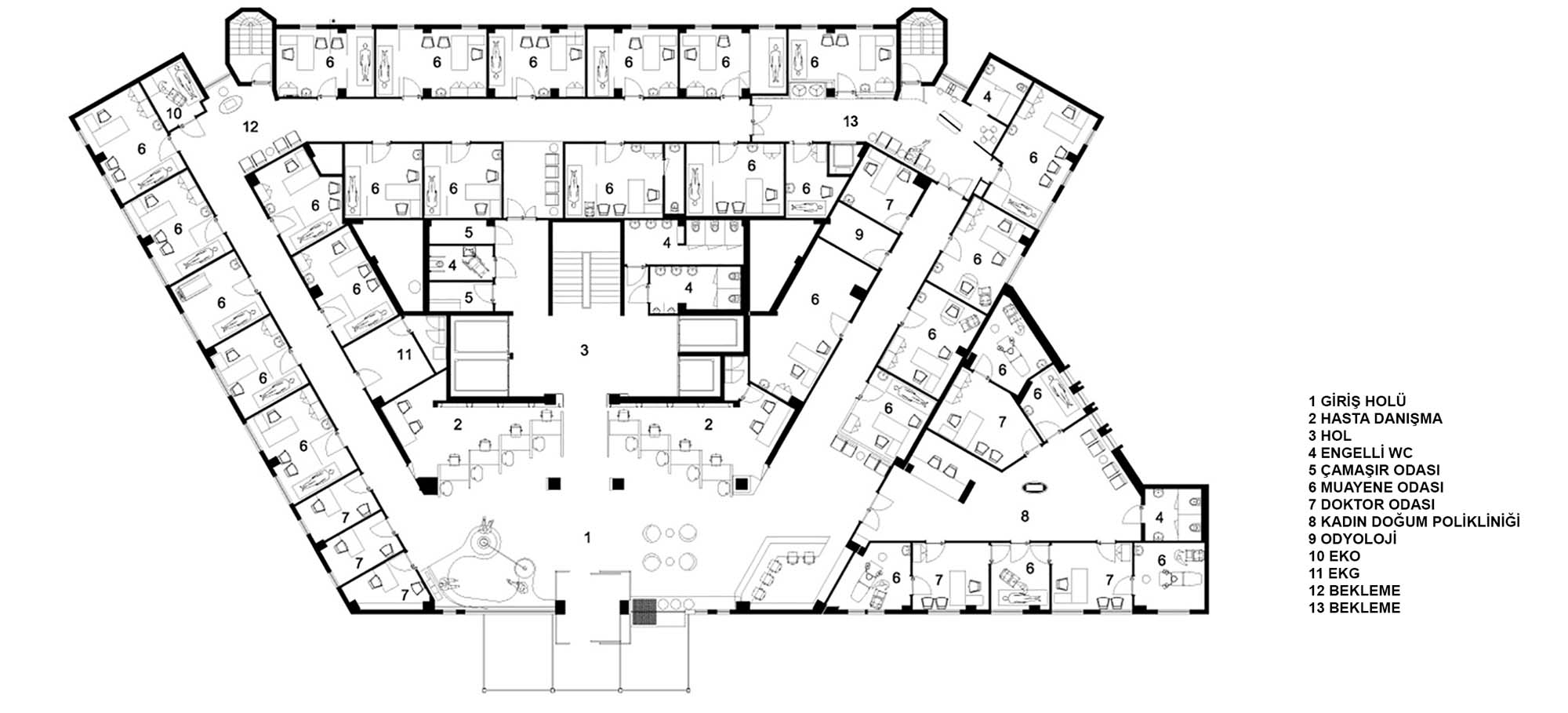
Bayındır İçerenköy Hastanesi Yenileme Projesi
Proje Yeri: Ataşehir, İstanbul
Proje Ofisi: Ekiz Tüzer Mimarlık
Proje Tipi: Hastane / Poliklinik
Proje Tipi Grubu: Sağlık
Tasarım Ekibi: Armağan Ekiz Bayık, Başak Çolakoğlu Tüzer
İşveren: Bayındır Sağlık Grubu
Ana Yüklenici: İşmer
Statik Projesi: Prota Mühendislik
Mekanik Projesi: Mira Mühendislik
Elektrik Projesi: Mira Mühendislik
Çelik Projesi: Prota Mühendislik
Fotoğraf: Mert Kibar
Proje Başlangıç Yılı: 2010
Proje Bitiş Yılı: 2010
İnşaat Başlangıç Yılı: 2010
İnşaat Bitiş Yılı: 2010
Toplam İnşaat Alanı: 9.000 m²