13/15
Paylaş
Resmi Orjinal Boyutunda Göster
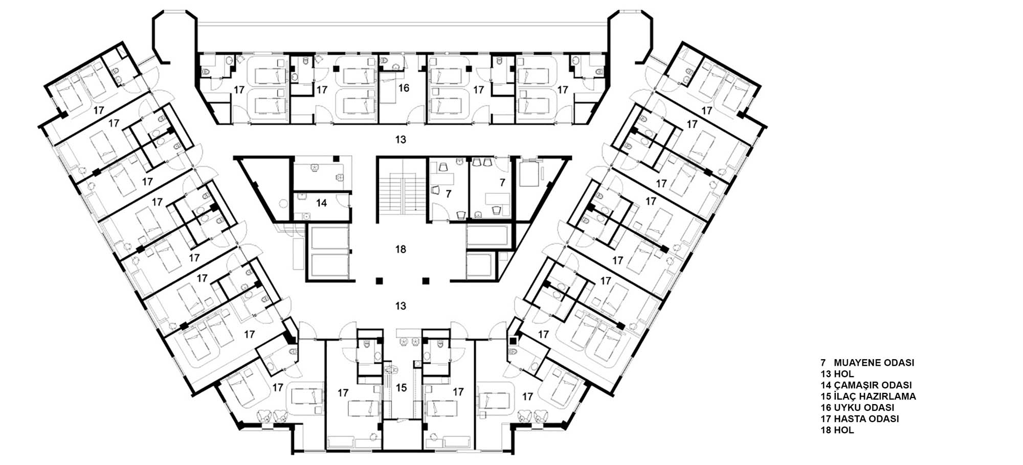
Bayındır İçerenköy Hastanesi Yenileme Projesi
Project Location: Ataşehir, İstanbul
Project Office: Ekiz Tüzer Mimarlık
Project Type: Hospital / Clinic
Proje Tipi Grubu: Sağlık
Tasarım Ekibi: Armağan Ekiz Bayık, Başak Çolakoğlu Tüzer
Employer: Bayındır Sağlık Grubu
Ana Yüklenici: İşmer
Structural Project: Prota Mühendislik
Mechanical Project: Mira Mühendislik
Electrical Project: Mira Mühendislik
Çelik Projesi: Prota Mühendislik
Photography: Mert Kibar
Project Start Date: 2010
Project End Date: 2010
Construction Start Date: 2010
Construction End Date: 2010
Total Construction Area: 9.000 m²