31/32
Paylaş
Resmi Orjinal Boyutunda Göster
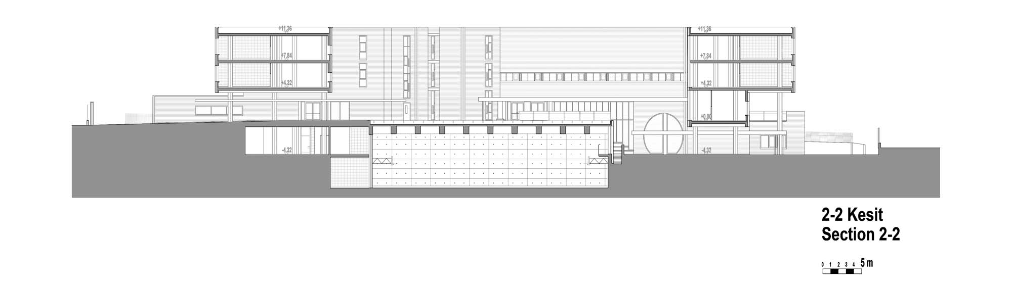
Akşemsettin İlkokulu
Proje Yeri: Küçükçekmece, İstanbul
Proje Ofisi: Uygur Mimarlık
Proje Tipi: Lise / Ortaöğretim
Proje Tipi Grubu: Eğitim
Tasarım Ekibi: Semra Uygur, Özcan Uygur
İşveren: İstanbul Proje Koordinasyon Birimi (İPKB)
Yardımcı: Necati Seren, Güliz Erkan, Kemal Yurtgezen, Aybüke Kır, Mustafa Kır, Ahmet Korkmaz, Erbil Algan
Ana Yüklenici: AL-GA İnşaat
Peyzaj Mimarlığı: Can Kubin, Kemal Özgür, Yüksel Çetinkaya
Statik Projesi: Ayhan Fazlıoğlu
Mekanik Projesi: Bahri Türkmen
Elektrik Projesi: Kemal Aykaç
Altyapı Projesi: Hayriye Saka
Fotoğraf: Cemal Emden
Proje Başlangıç Yılı: 2017
Proje Bitiş Yılı: 2017
İnşaat Başlangıç Yılı: 2018
İnşaat Bitiş Yılı: 2021
Arsa Alanı: 9.000 m²
Toplam İnşaat Alanı: 11.669 m2