8/32
Paylaş
Resmi Orjinal Boyutunda Göster
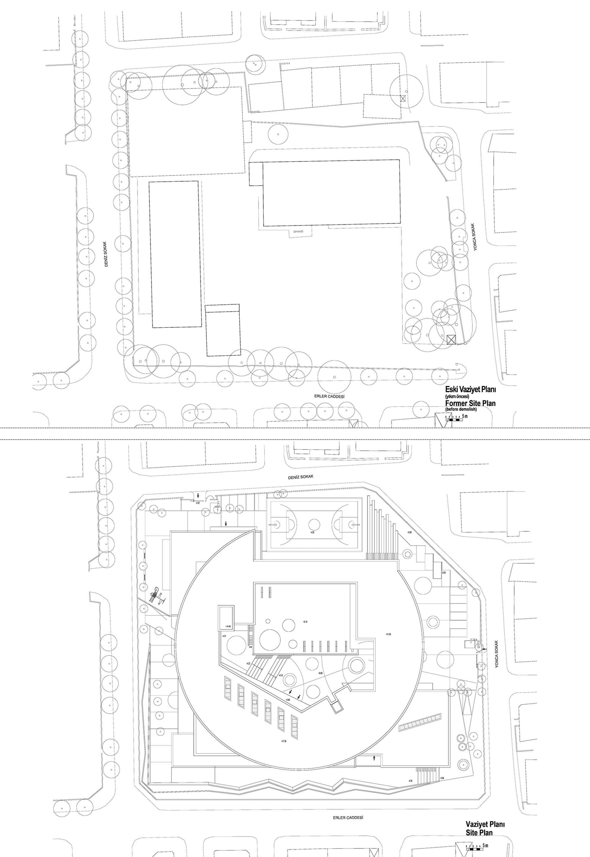
Akşemsettin İlkokulu
Project Location: Küçükçekmece, İstanbul
Project Office: Uygur Mimarlık
Project Type: High School
Proje Tipi Grubu: Eğitim
Tasarım Ekibi: Semra Uygur, Özcan Uygur
Employer: İstanbul Proje Koordinasyon Birimi (İPKB)
Yardımcı: Necati Seren, Güliz Erkan, Kemal Yurtgezen, Aybüke Kır, Mustafa Kır, Ahmet Korkmaz, Erbil Algan
Ana Yüklenici: AL-GA İnşaat
Peyzaj Mimarlığı: Can Kubin, Kemal Özgür, Yüksel Çetinkaya
Structural Project: Ayhan Fazlıoğlu
Mechanical Project: Bahri Türkmen
Electrical Project: Kemal Aykaç
Altyapı Projesi: Hayriye Saka
Photography: Cemal Emden
Project Start Date: 2017
Project End Date: 2017
Construction Start Date: 2018
Construction End Date: 2021
Building Plot Area: 9.000 m²
Total Construction Area: 11.669 m2