4/19
Paylaş
Resmi Orjinal Boyutunda Göster
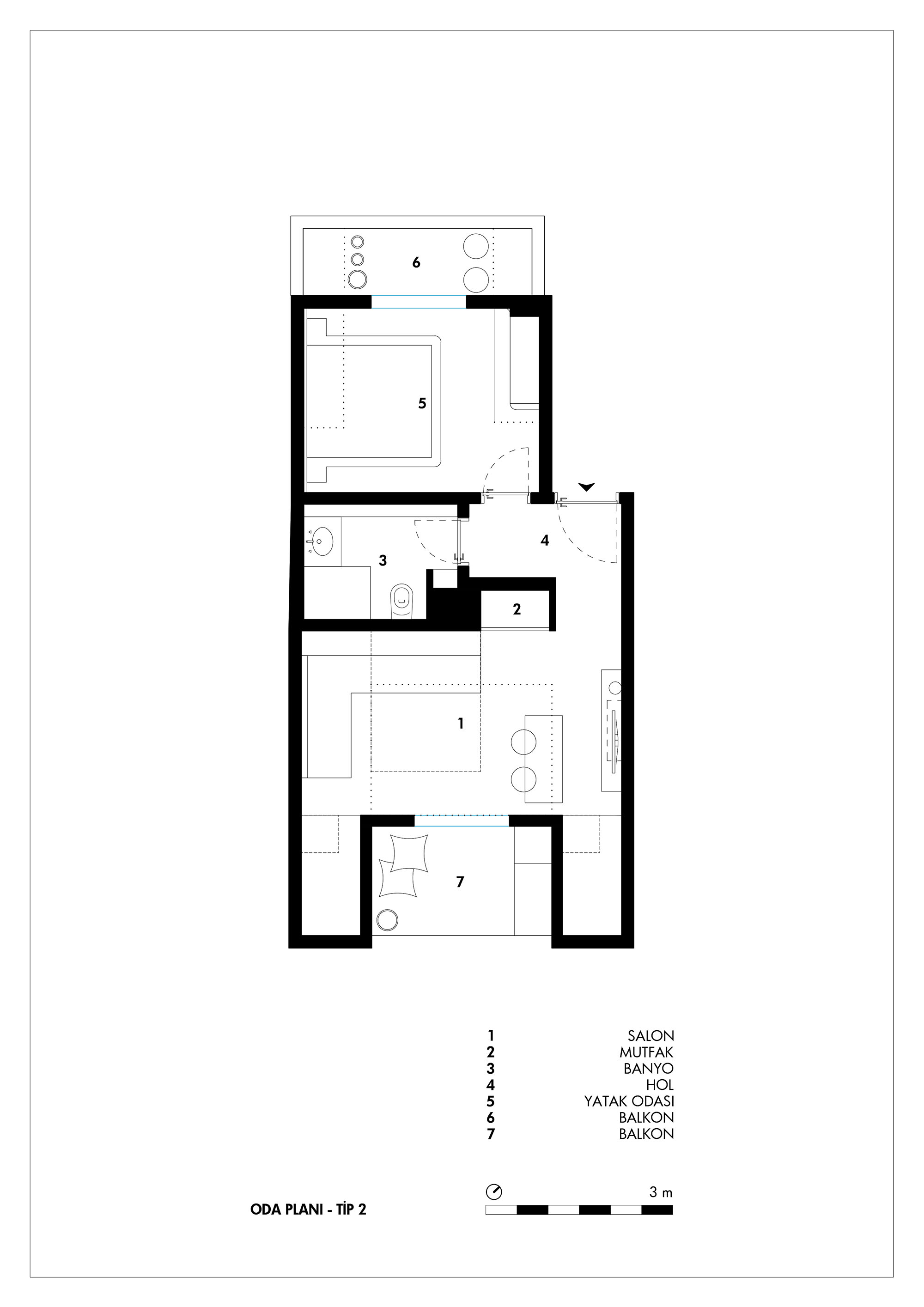
Lolive Homes
Proje Yeri: Marmaris, Muğla
Proje Ofisi: Deren Uysal Architecture
Tasarım Ekibi: Deren Uysal
Mimari Proje Ekibi: Selen Özdoğan, Dilara Yılmaz, Banı Başyurt
İşveren: Gizem Berk
Danışman: Levent Uysal
Ana Yüklenici: Gizem Berk
İç Mekan Projesi: Deren Uysal Architecture
Konsept Tasarımı: Deren Uysal Architecture
Uygulama Projesi: Deren Uysal Architecture
Grafik Tasarım: Selen Özdoğan
Proje Başlangıç Yılı: 2020
Proje Bitiş Yılı: 2021
İnşaat Başlangıç Yılı: 2021
İnşaat Bitiş Yılı: 2021
Toplam İnşaat Alanı: 513