5/19
Paylaş
Resmi Orjinal Boyutunda Göster
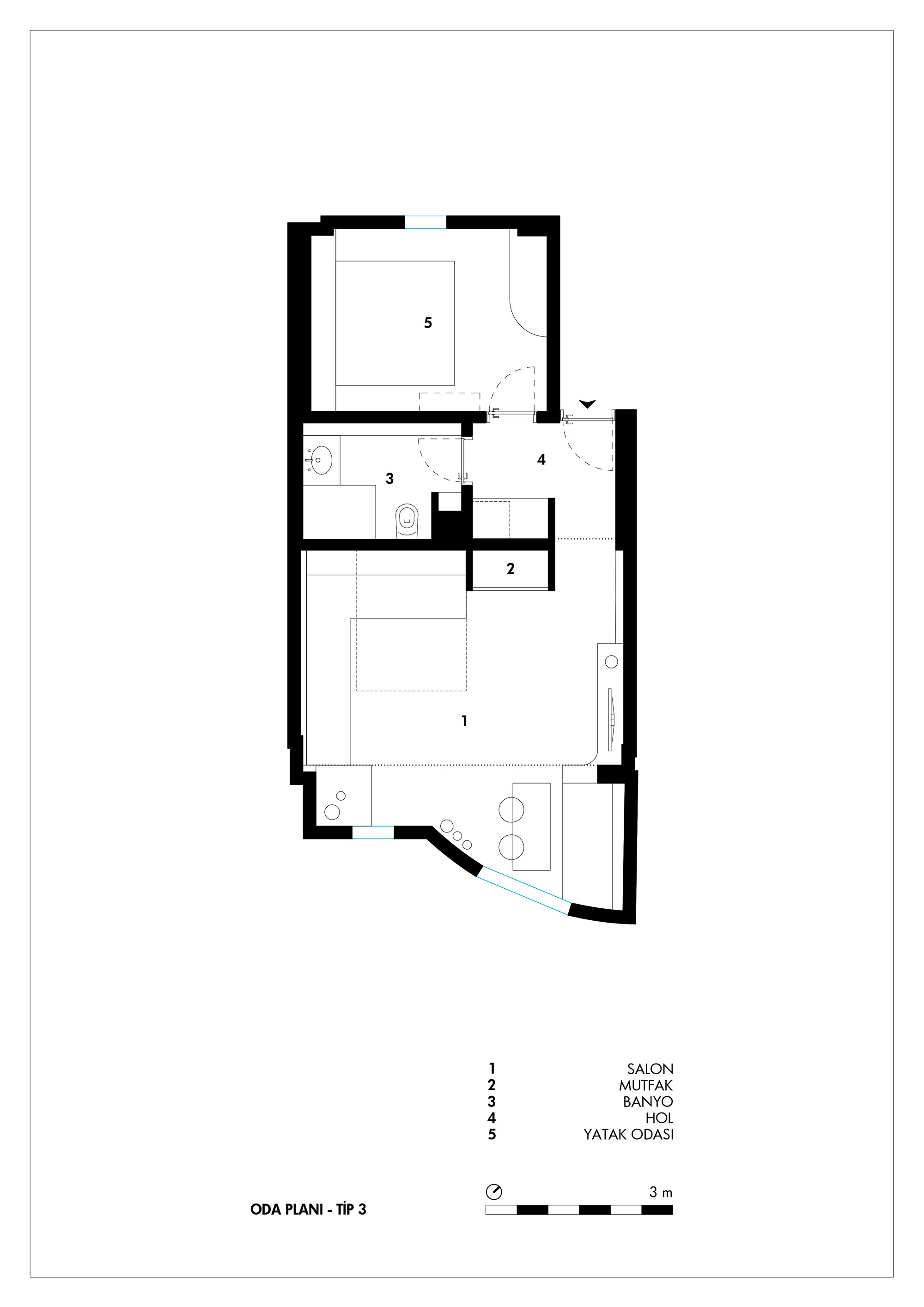
Lolive Homes
Project Location: Marmaris, Muğla
Project Office: Deren Uysal Architecture
Tasarım Ekibi: Deren Uysal
Architectural Project Team: Selen Özdoğan, Dilara Yılmaz, Banı Başyurt
Employer: Gizem Berk
Consultant: Levent Uysal
Ana Yüklenici: Gizem Berk
Interior Architecture: Deren Uysal Architecture
Concept Design: Deren Uysal Architecture
Construction Drawings: Deren Uysal Architecture
Grafik Tasarım: Selen Özdoğan
Project Start Date: 2020
Project End Date: 2021
Construction Start Date: 2021
Construction End Date: 2021
Total Construction Area: 513