128/133
Paylaş
Resmi Orjinal Boyutunda Göster
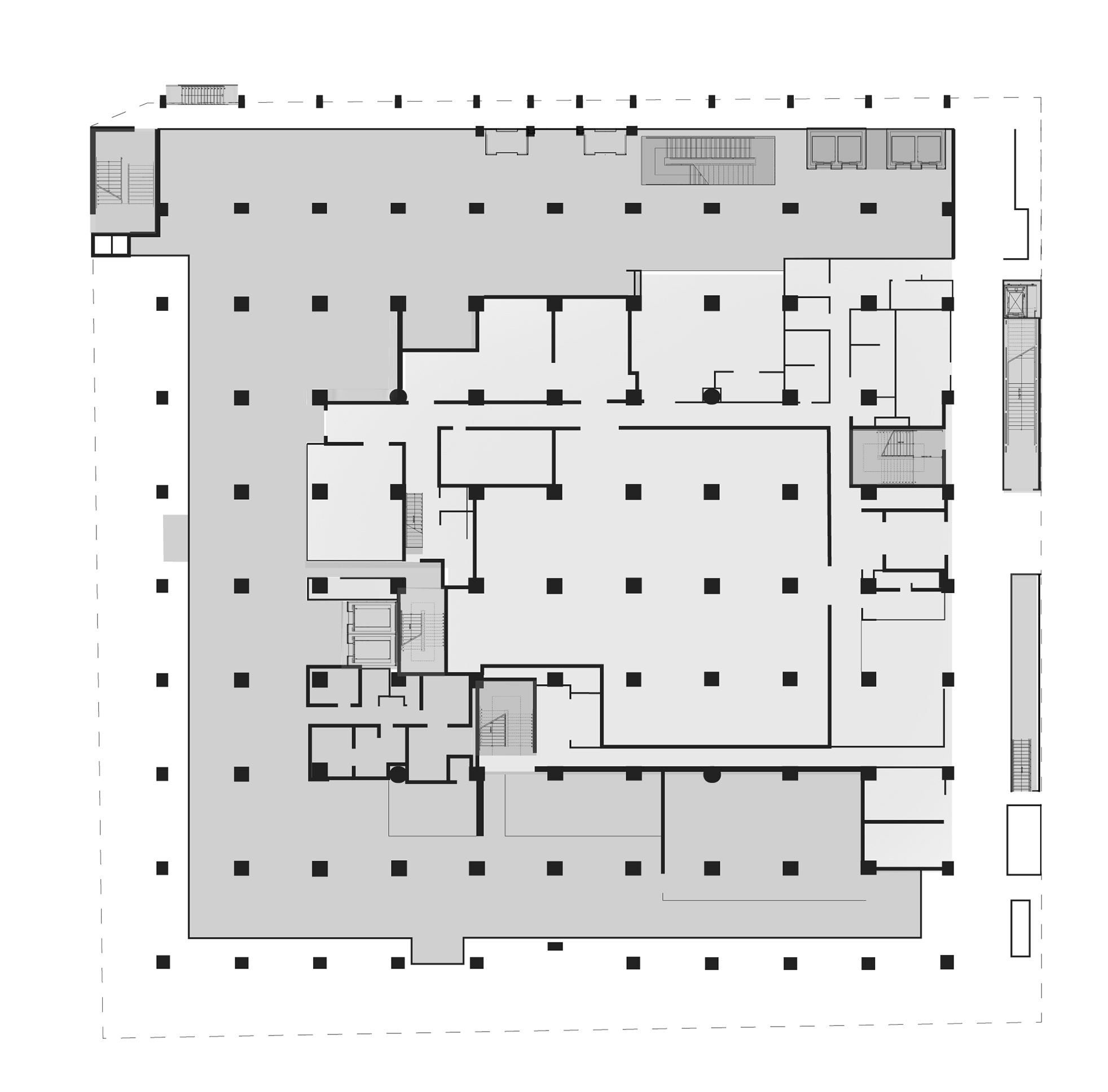
Istanbul Resim Heykel Muzesi
Proje Yeri: İstanbul, Karaköy
Proje Ofisi: EAA-Emre Arolat Architecture
Proje Tipi: Müze
Proje Tipi Grubu: Kültür Yapısı
İşveren: Mimar Sinan Güzel Sanatlar Üniversitesi (MSGSÜ)
Peyzaj Mimarlığı: DS Mimarlık, EAA-Emre Arolat Architecture
İç Mekan Projesi: EAA-Emre Arolat Architecture
Cephe Tasarımı: AXIS Cephe Danışmanlık
Aydınlatma Projesi: SLD - Studio Light Design
Statik Projesi: Tezkon Mühendislik
Mekanik Projesi: Dinamik Proje Mühendislik
Elektrik Projesi: HB Teknik Elektrik Mühendislik
Altyapı Projesi: Proses Mühendislik
Akustik Danışmanı: Sey Danışmanlık
Yangın Güvenlik Danışmanı: Abdurrahman Kılıç
Fotoğraf: Thomas Mayer, Cemal Emden, Engin Gerçek, Studio Rino
Proje Başlangıç Yılı: 2011
Proje Bitiş Yılı: 2014
İnşaat Başlangıç Yılı: 2014
İnşaat Bitiş Yılı: 2021
Arsa Alanı: 5.370
Toplam İnşaat Alanı: 20.087