129/133
Paylaş
Resmi Orjinal Boyutunda Göster
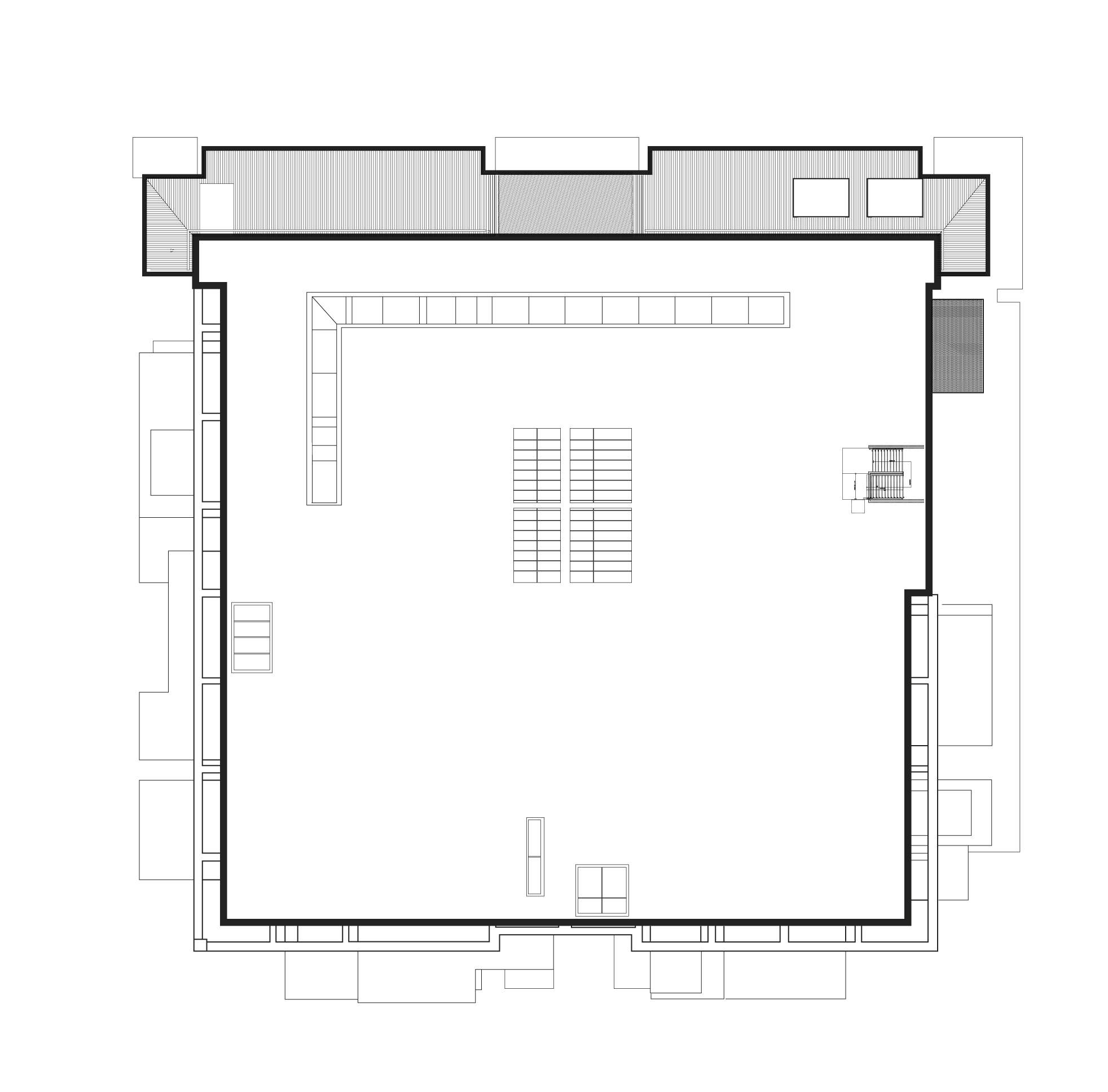
Istanbul Resim Heykel Muzesi
Project Location: İstanbul, Karaköy
Project Office: EAA-Emre Arolat Architecture
Project Type: Museum
Proje Tipi Grubu: Kültür Yapısı
Employer: Mimar Sinan Güzel Sanatlar Üniversitesi (MSGSÜ)
Peyzaj Mimarlığı: DS Mimarlık, EAA-Emre Arolat Architecture
Interior Architecture: EAA-Emre Arolat Architecture
Facade Design: AXIS Cephe Danışmanlık
Lighting Project: SLD - Studio Light Design
Structural Project: Tezkon Mühendislik
Mechanical Project: Dinamik Proje Mühendislik
Electrical Project: HB Teknik Elektrik Mühendislik
Altyapı Projesi: Proses Mühendislik
Acoustic Consultant: Sey Danışmanlık
Fire Safety Consultant: Abdurrahman Kılıç
Photography: Thomas Mayer, Cemal Emden, Engin Gerçek, Studio Rino
Project Start Date: 2011
Project End Date: 2014
Construction Start Date: 2014
Construction End Date: 2021
Building Plot Area: 5.370
Total Construction Area: 20.087