3/29
Paylaş
Resmi Orjinal Boyutunda Göster
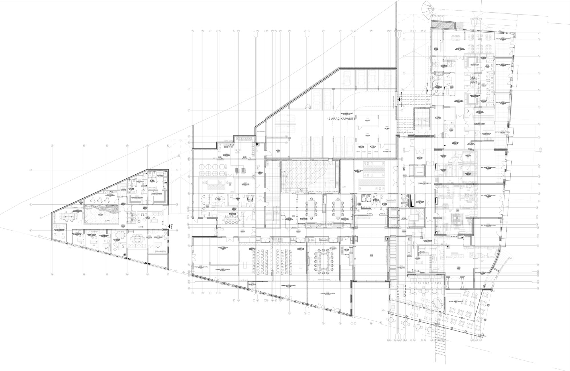
Radisson Collection Hotel Bodrum
Project Location: Bodrum, Muğla
Project Office: AYYAPI Mimarlık
Tasarım Ekibi: Hüray Erk, Kağan Erk, Tamer İnan, Ceren Su Çelik, Özgür Karakılıç, Meltem Yıldırım
Interior Architecture: Metex Studio Erk
Project Start Date: 2019
Project End Date: 2021
Construction Start Date: 2019
Construction End Date: 2021