5/29
Paylaş
Resmi Orjinal Boyutunda Göster
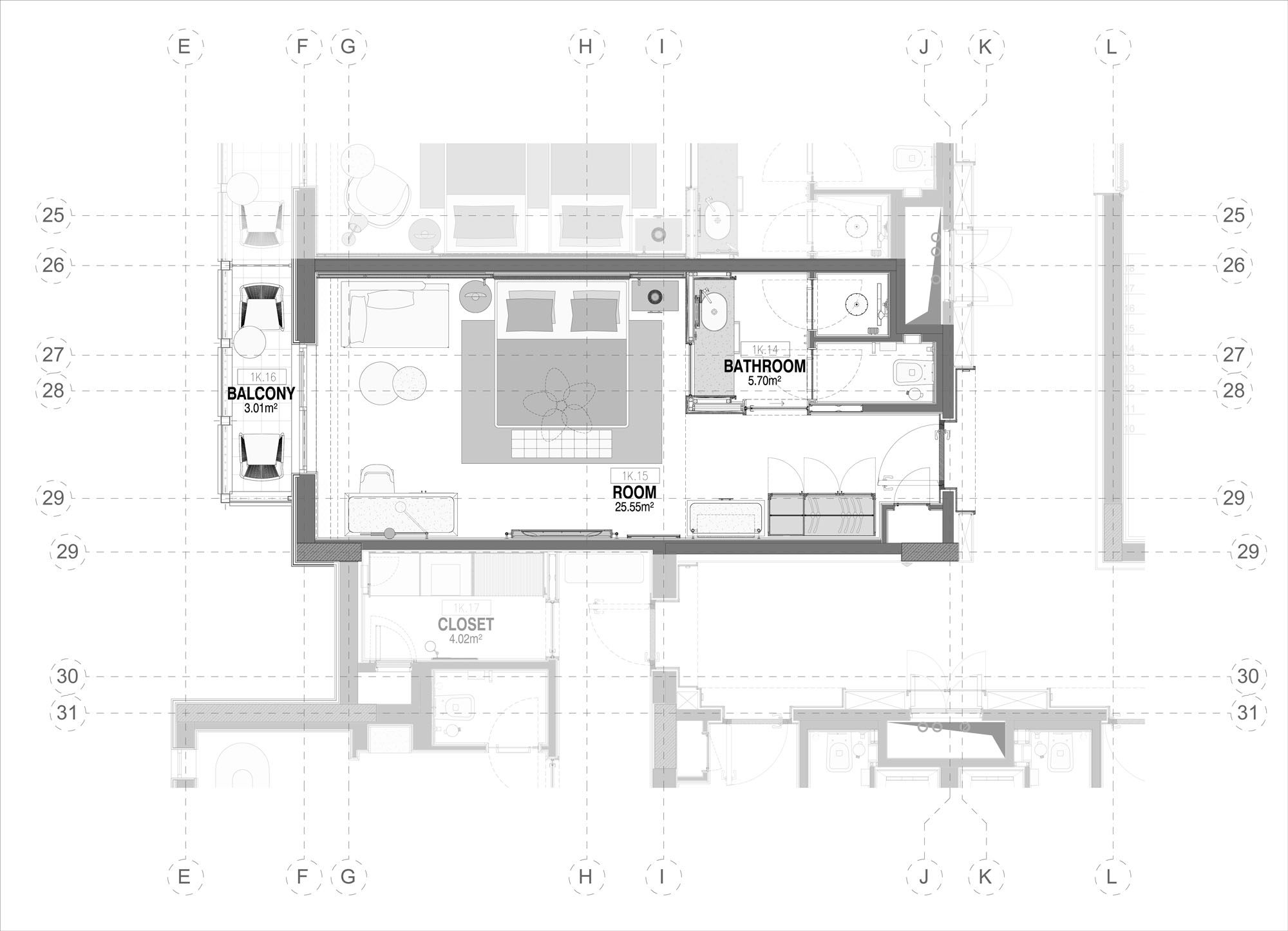
Radisson Collection Hotel Bodrum
Proje Yeri: Bodrum, Muğla
Proje Ofisi: AYYAPI Mimarlık
Tasarım Ekibi: Hüray Erk, Kağan Erk, Tamer İnan, Ceren Su Çelik, Özgür Karakılıç, Meltem Yıldırım
İç Mekan Projesi: Metex Studio Erk
Proje Başlangıç Yılı: 2019
Proje Bitiş Yılı: 2021
İnşaat Başlangıç Yılı: 2019
İnşaat Bitiş Yılı: 2021