2/14
Paylaş
Resmi Orjinal Boyutunda Göster
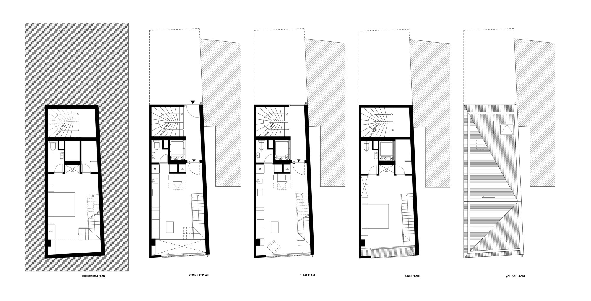
Mikroloft 3 – Palaska 29
Project Location: İstanbul, Beyoğlu
Project Office: Çinici Mimarlık
Architectural Project Team: Can Çinici, Cem Katkat, Begüm Yılmaz Bilgin
Employer: Seryapı Gayrimenkul
Alt Yüklenici: Seryapı Gayrimenkul, Aytaç Pektaş, Aşir Pektaş
Interior Architecture: Çinici Mimarlık
Concept Design: Çinici Mimarlık
Construction Drawings: Çinici Mimarlık
Facade Design: Çinici Mimarlık
Lighting Project: Çinici Mimarlık
Grafik Tasarım: Çinici Mimarlık
Structural Project: Numan Kılıçarslan
Mechanical Project: Necati Caymaz
Electrical Project: Enver Pakyürek
Photography: Cemal Emden
Architectural Supervision: Çinici Mimarlık
Construction Site Manager: Aytaç Pektaş
Project Start Date: 2012
Project End Date: 2016
Construction Start Date: 2019
Construction End Date: 2021
Building Plot Area: 68 m²
Total Construction Area: 276 m²