3/14
Paylaş
Resmi Orjinal Boyutunda Göster
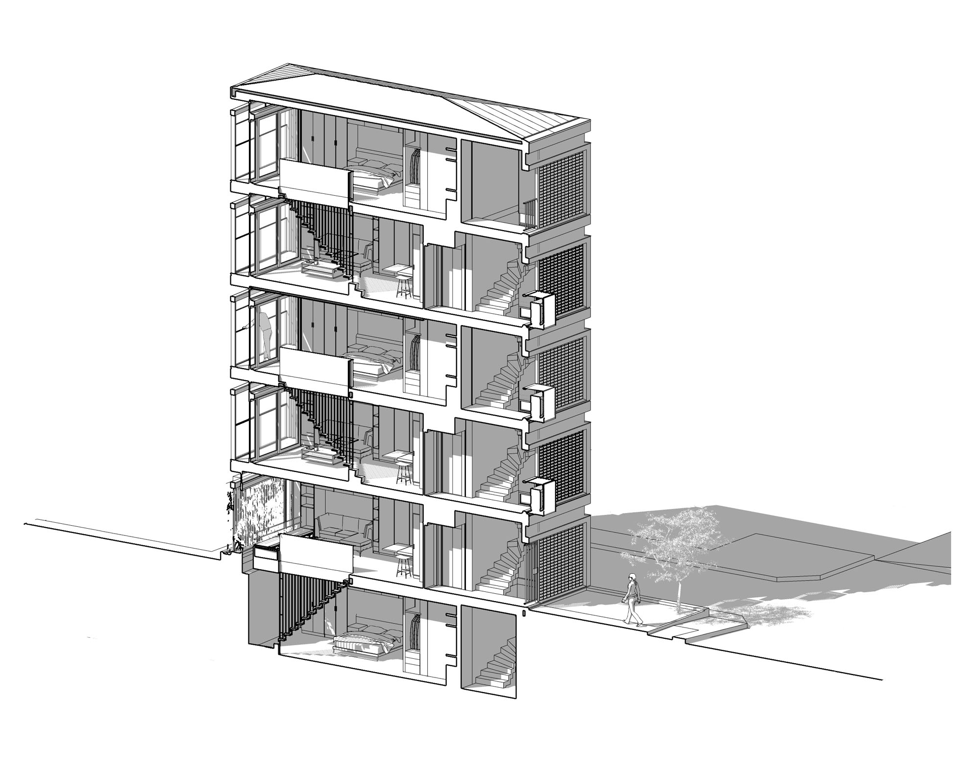
Mikroloft 3 – Palaska 29
Proje Yeri: İstanbul, Beyoğlu
Proje Ofisi: Çinici Mimarlık
Mimari Proje Ekibi: Can Çinici, Cem Katkat, Begüm Yılmaz Bilgin
İşveren: Seryapı Gayrimenkul
Alt Yüklenici: Seryapı Gayrimenkul, Aytaç Pektaş, Aşir Pektaş
İç Mekan Projesi: Çinici Mimarlık
Konsept Tasarımı: Çinici Mimarlık
Uygulama Projesi: Çinici Mimarlık
Cephe Tasarımı: Çinici Mimarlık
Aydınlatma Projesi: Çinici Mimarlık
Grafik Tasarım: Çinici Mimarlık
Statik Projesi: Numan Kılıçarslan
Mekanik Projesi: Necati Caymaz
Elektrik Projesi: Enver Pakyürek
Fotoğraf: Cemal Emden
Mimari Mesleki Kontrollük: Çinici Mimarlık
Şantiye Yöneticisi: Aytaç Pektaş
Proje Başlangıç Yılı: 2012
Proje Bitiş Yılı: 2016
İnşaat Başlangıç Yılı: 2019
İnşaat Bitiş Yılı: 2021
Arsa Alanı: 68 m²
Toplam İnşaat Alanı: 276 m²