56/59
Paylaş
Resmi Orjinal Boyutunda Göster
LYSA
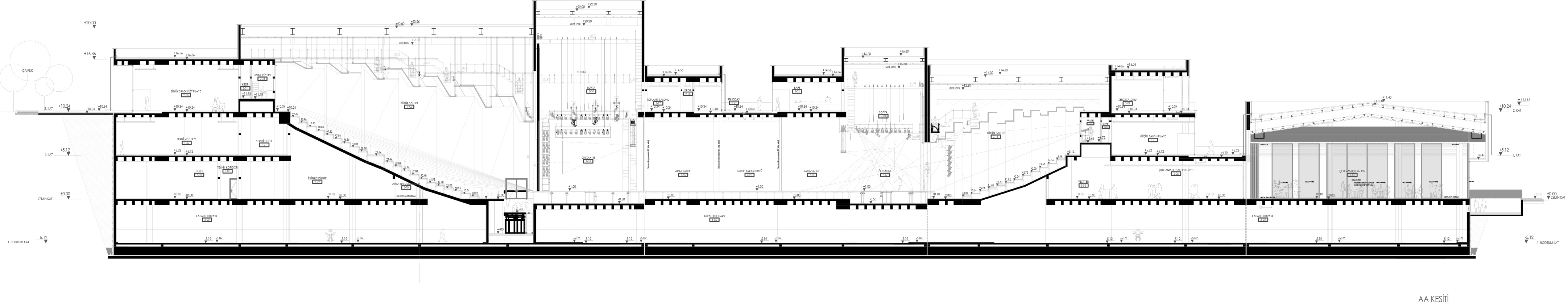
Project Location: Lüleburgaz, Kırklareli
Project Office: İkikerebir
Proje Tipi Grubu: Ağa Han Kültür Vakfı, Kültür
Tasarım Ekibi: Hakan Evkaya, Kutlu İnanç Bal
Architectural Project Team: Hakan Evkaya, Kutlu İnanç Bal
Employer: Lüleburgaz Belediyesi
Consultant: Zeynep Odabaş, Türker Talayman
Ana Yüklenici: GüneşYol İnşaat
Photography: Egemen Karakaya
Project Start Date: 2016
Project End Date: 2017
Construction Start Date: 2017
Construction End Date: 2023
Building Plot Area: 37.060 m2
Total Construction Area: 27.752 m2