58/59
Paylaş
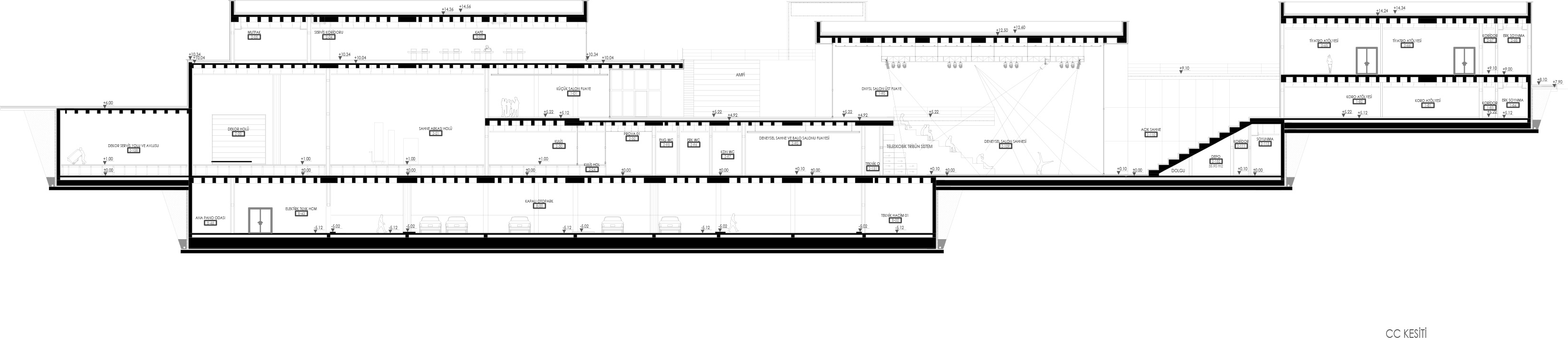
Resmi Orjinal Boyutunda Göster
LYSA
Proje Yeri: Lüleburgaz, Kırklareli
Proje Ofisi: İkikerebir
Proje Tipi Grubu: Ağa Han Kültür Vakfı, Kültür
Tasarım Ekibi: Hakan Evkaya, Kutlu İnanç Bal
Mimari Proje Ekibi: Hakan Evkaya, Kutlu İnanç Bal
İşveren: Lüleburgaz Belediyesi
Danışman: Zeynep Odabaş, Türker Talayman
Ana Yüklenici: GüneşYol İnşaat
Fotoğraf: Egemen Karakaya
Proje Başlangıç Yılı: 2016
Proje Bitiş Yılı: 2017
İnşaat Başlangıç Yılı: 2017
İnşaat Bitiş Yılı: 2023
Arsa Alanı: 37.060 m2
Toplam İnşaat Alanı: 27.752 m2