13/19
Paylaş
Resmi Orjinal Boyutunda Göster
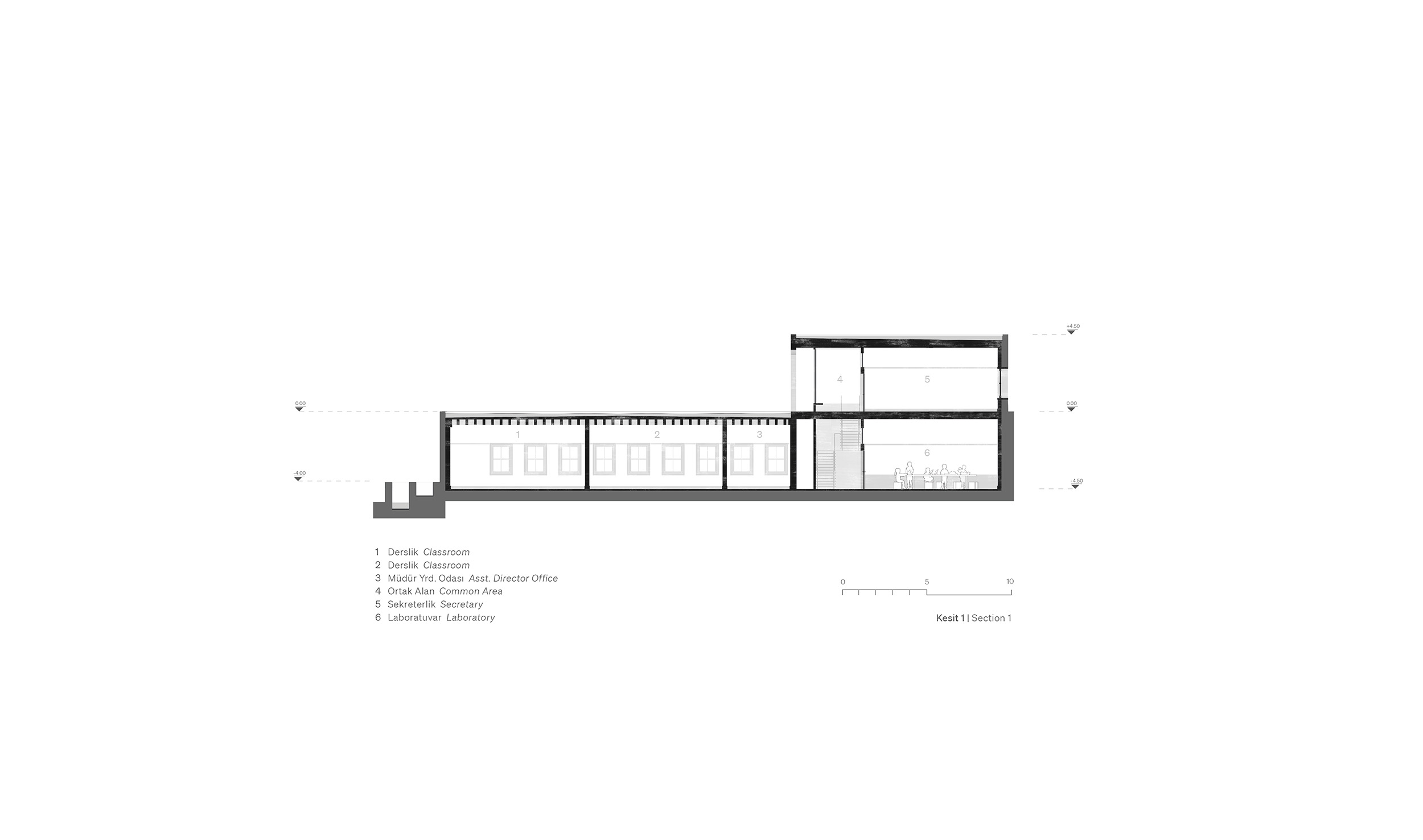
Sille İlkokulu
Proje Yeri: Selçuklu
Proje Ofisi: Teğet Mimarlık
Proje Tipi: İlkokul
Proje Tipi Grubu: Eğitim Yapısı
Tasarım Ekibi: Mehmet Kütükçüoğlu, Emine Hande Ciğerli, Hande Ciğerli, Ethem Aybar, Ertuğ Uçar, Ece Ünübol, Deniz Dilan Kara, Alican Tilkan
İşveren: Konya Selçuklu Belediyesi
Ana Yüklenici: Taksim Yapı
Statik Projesi: BK Yapısal Tasarım
Mekanik Projesi: KSM Mühendislik
Elektrik Projesi: Tesla Mühendislik
Maket: Serdar Albaz
Fotoğraf: Egemen Karakaya
Proje Başlangıç Yılı: 2019
Proje Bitiş Yılı: 2019
İnşaat Başlangıç Yılı: 2022
İnşaat Bitiş Yılı: 2023
Arsa Alanı: 2.337,63 m2
Toplam İnşaat Alanı: 1.730 m2