17/19
Paylaş
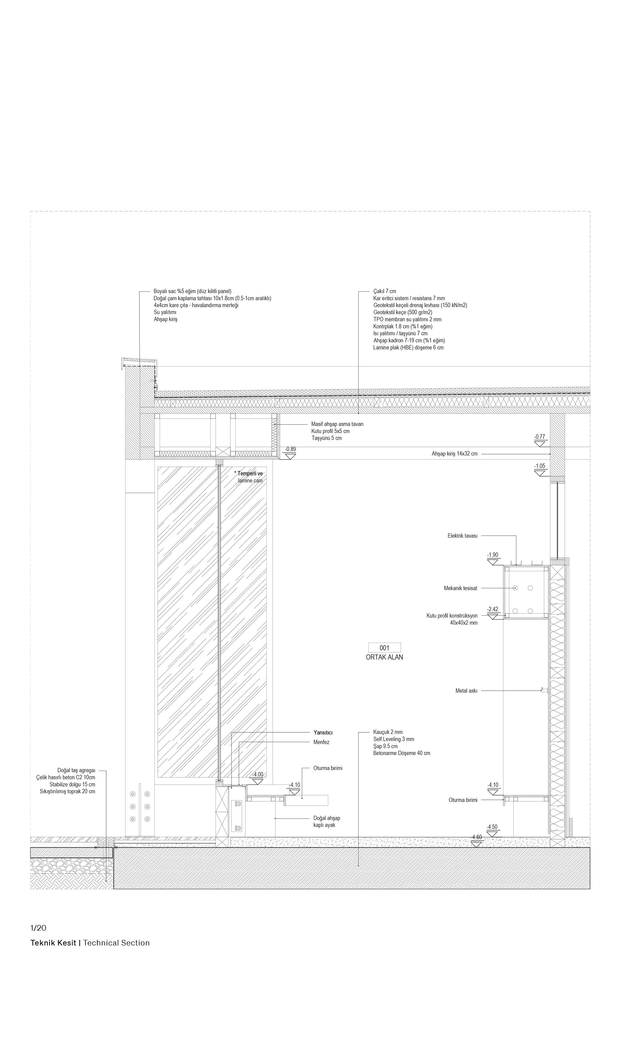
Resmi Orjinal Boyutunda Göster
Sille İlkokulu
Project Location: Selçuklu
Project Office: Teğet Mimarlık
Project Type: İlkokul
Proje Tipi Grubu: Eğitim Yapısı
Tasarım Ekibi: Mehmet Kütükçüoğlu, Emine Hande Ciğerli, Hande Ciğerli, Ethem Aybar, Ertuğ Uçar, Ece Ünübol, Deniz Dilan Kara, Alican Tilkan
Employer: Konya Selçuklu Belediyesi
Ana Yüklenici: Taksim Yapı
Structural Project: BK Yapısal Tasarım
Mechanical Project: KSM Mühendislik
Electrical Project: Tesla Mühendislik
Model: Serdar Albaz
Photography: Egemen Karakaya
Project Start Date: 2019
Project End Date: 2019
Construction Start Date: 2022
Construction End Date: 2023
Building Plot Area: 2.337,63 m2
Total Construction Area: 1.730 m2