35/39
Paylaş
Resmi Orjinal Boyutunda Göster
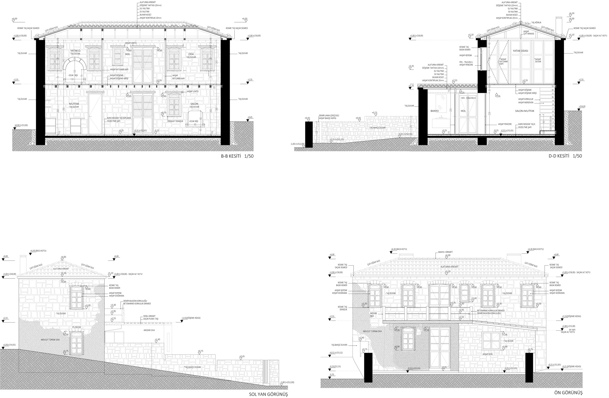
Tepeköy Evi
Project Location: Gökçeada
Project Office: Buda Mimarlık
Architectural Project Team: Burak Pelenk, Eda Yazkurt Pelenk
Yardımcı: Bahadır Can Günay, Elfin Aydınoğlu
Project Start Date: 2020
Project End Date: 2021
Construction Start Date: 2021
Construction End Date: 2023
Building Plot Area: 120 m2
Total Construction Area: 110 m²