36/39
Paylaş
Resmi Orjinal Boyutunda Göster
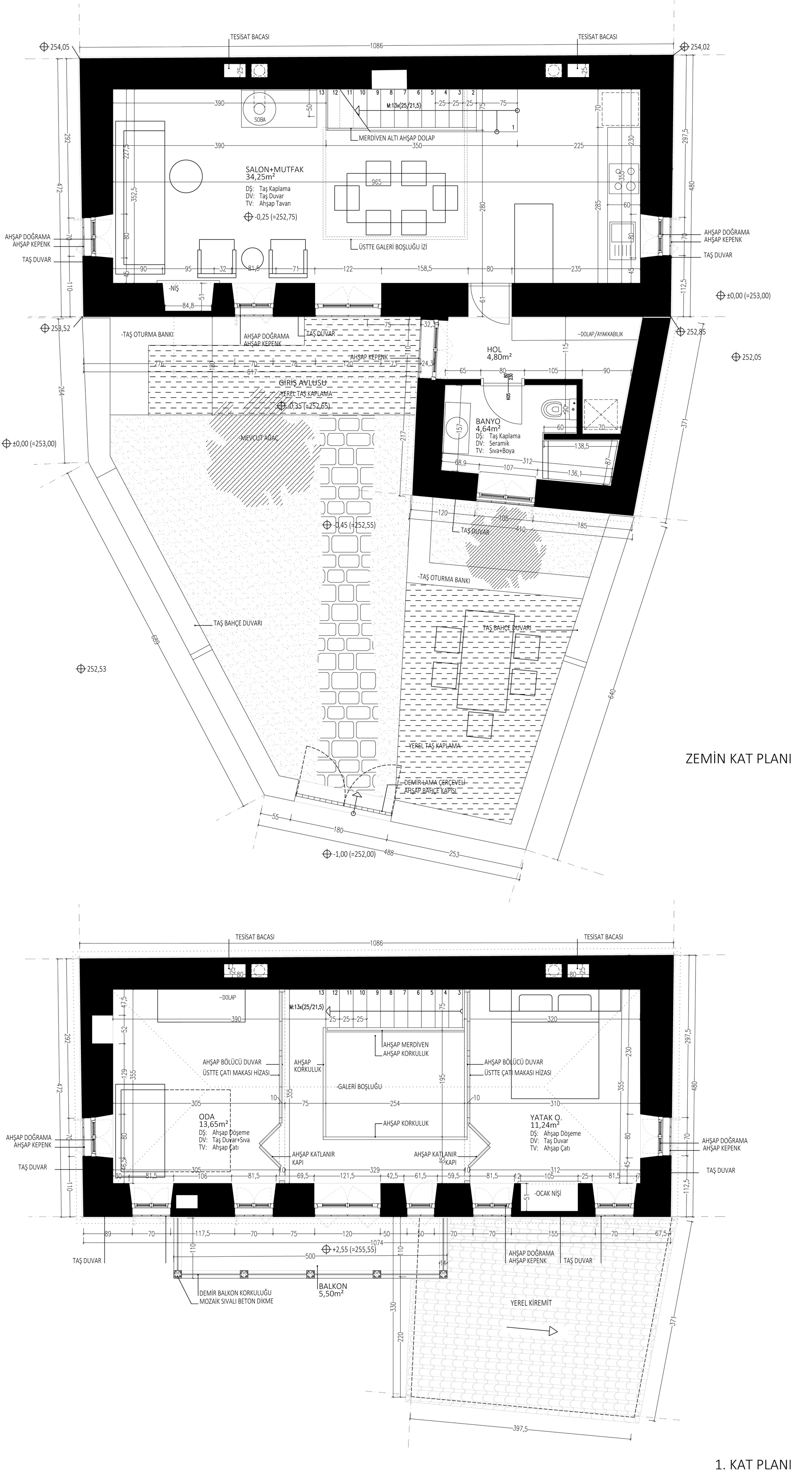
Tepeköy Evi
Proje Yeri: Gökçeada
Proje Ofisi: Buda Mimarlık
Mimari Proje Ekibi: Burak Pelenk, Eda Yazkurt Pelenk
Yardımcı: Bahadır Can Günay, Elfin Aydınoğlu
Proje Başlangıç Yılı: 2020
Proje Bitiş Yılı: 2021
İnşaat Başlangıç Yılı: 2021
İnşaat Bitiş Yılı: 2023
Arsa Alanı: 120 m2
Toplam İnşaat Alanı: 110 m²