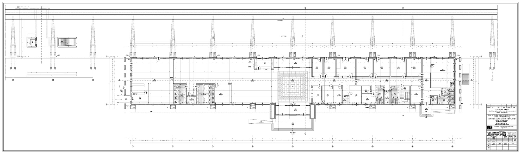
Zemin Kat Planı
2/4
Paylaş
Resmi Orjinal Boyutunda Göster
Sivas Hızlı Tren Garı ve İstasyon Tesisleri
Project Location: Sivas
Project Type: Railway Buildings
Tasarım Ekibi: Alper Ünlü
Employer: Ulaştırma, Denizcilik ve Haberleşme Bakanlığı, DLH Genel Müdürlüğü
Yardımcı: Oğuz Filik
Structural Project: Altınok Müşavirlik ve Mühendislik
Mechanical Project: A.Zafer Çuhadar
Electrical Project: A.Zafer Çuhadar
Project Start Date: 2008
Total Construction Area: 10.000m²