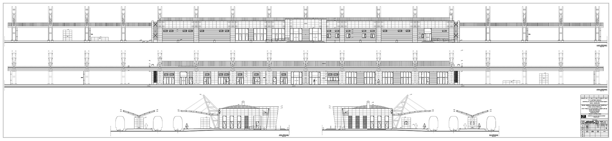
Cephe
4/4
Paylaş
Resmi Orjinal Boyutunda Göster
Sivas Hızlı Tren Garı ve İstasyon Tesisleri
Proje Yeri: Sivas
Proje Tipi: Demiryolu Yapıları
Tasarım Ekibi: Alper Ünlü
İşveren: Ulaştırma, Denizcilik ve Haberleşme Bakanlığı, DLH Genel Müdürlüğü
Yardımcı: Oğuz Filik
Statik Projesi: Altınok Müşavirlik ve Mühendislik
Mekanik Projesi: A.Zafer Çuhadar
Elektrik Projesi: A.Zafer Çuhadar
Proje Başlangıç Yılı: 2008
Toplam İnşaat Alanı: 10.000m²