24
20/29
Paylaş
Resmi Orjinal Boyutunda Göster
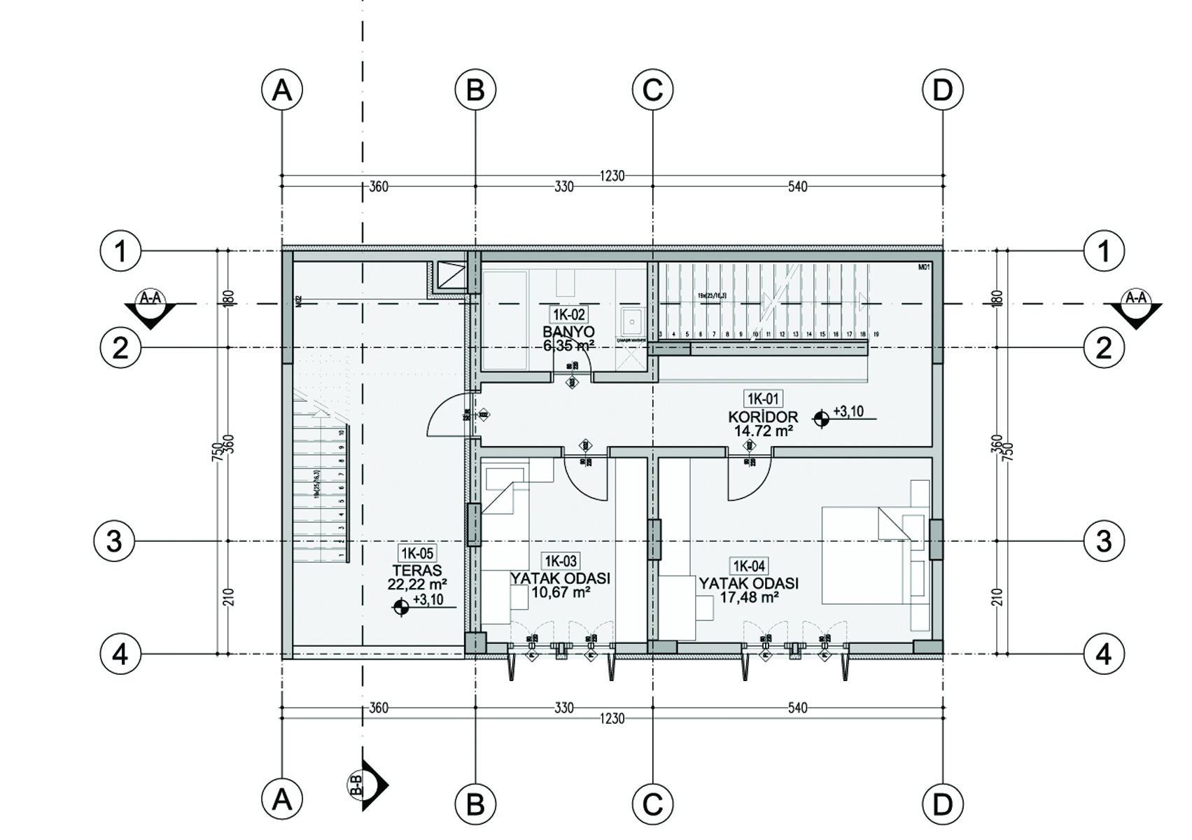
Mardin Artuklu Üniversitesi Lojmanları
Proje Yeri: Mardin
Proje Ofisi: CeSa Mimarlar
Proje Tipi: Konut Sitesi / Grubu
Tasarım Ekibi: Murat Şahin, İbrahim Çelepöven, Yüksel Demir, Mehmet Çalık
İşveren: Mardin Artuklu Üniversitesi
Danışman: Cengiz Giritlioğlu, Orhan Hacıhasanoğlu, Gülen Çağdaş, Feridun Çılı, Nur Esin, Mehmet Ocakçı, Belkıs Uluoğlu, Yegan Kahya, Sinan Mert Şener, Leyla Tanacan, Hakan Yaman, Nurgün Tamer Beyazit, Hakan Tong, Hülya Turgut
Yardımcı: Alper Yıldız, Ercan Kızılkanat, Emre Kayaalp, Melike Özyurt, Ahmet Çavdaroğlu, Alev Özçelik, Sercan Sarıtaş, Nazlıcan Nazlı
Statik Projesi: Dabanlıoğlu Mühendislik
Mekanik Projesi: Küp Mühendislik
Elektrik Projesi: Küp Mühendislik
Proje Başlangıç Yılı: 2009
Proje Bitiş Yılı: 2011
Arsa Alanı: 12.000 m2
Toplam İnşaat Alanı: 12.000 m2