28
24/29
Paylaş
Resmi Orjinal Boyutunda Göster
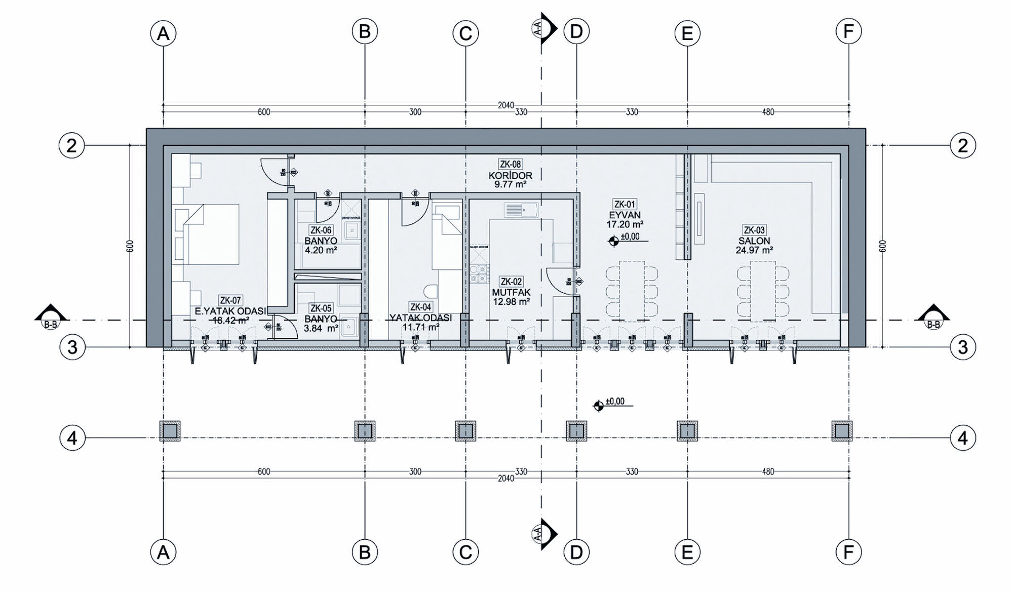
Mardin Artuklu Üniversitesi Lojmanları
Project Location: Mardin
Project Office: CeSa Mimarlar
Project Type: Housing Complex
Tasarım Ekibi: Murat Şahin, İbrahim Çelepöven, Yüksel Demir, Mehmet Çalık
Employer: Mardin Artuklu Üniversitesi
Consultant: Cengiz Giritlioğlu, Orhan Hacıhasanoğlu, Gülen Çağdaş, Feridun Çılı, Nur Esin, Mehmet Ocakçı, Belkıs Uluoğlu, Yegan Kahya, Sinan Mert Şener, Leyla Tanacan, Hakan Yaman, Nurgün Tamer Beyazit, Hakan Tong, Hülya Turgut
Yardımcı: Alper Yıldız, Ercan Kızılkanat, Emre Kayaalp, Melike Özyurt, Ahmet Çavdaroğlu, Alev Özçelik, Sercan Sarıtaş, Nazlıcan Nazlı
Structural Project: Dabanlıoğlu Mühendislik
Mechanical Project: Küp Mühendislik
Electrical Project: Küp Mühendislik
Project Start Date: 2009
Project End Date: 2011
Building Plot Area: 12.000 m2
Total Construction Area: 12.000 m2