13
13/17
Paylaş
Resmi Orjinal Boyutunda Göster
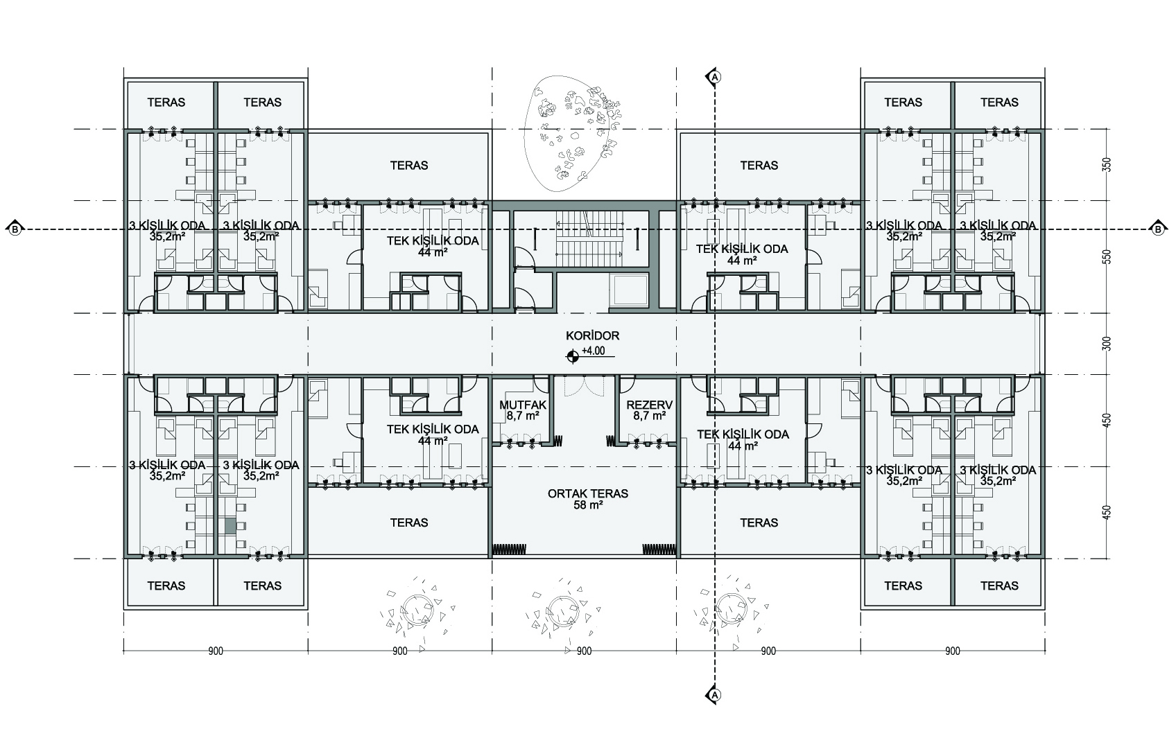
Mardin Artuklu Üniversitesi Yurt Yerleşkesi
Proje Yeri: Mardin
Proje Ofisi: CeSa Mimarlar, AGM Mühendislik
Proje Tipi: Yurt / Konukevi
Tasarım Ekibi: Murat Şahin, İbrahim Çelepöven, Yüksel Demir, Ergün Akgül
İşveren: Bayındırlık Bakanlığı
Danışman: Cengiz Giritlioğlu, Orhan Hacıhasanoğlu, Gülen Çağdaş, Feridun Çılı, Nur Esin, Mehmet Ocakçı, Belkıs Uluoğlu, Yegan Kahya, Sinan Mert Şener, Leyla Tanacan, Hakan Yaman, Nurgün Tamer Beyazit, Hakan Tong, Hülya Turgut
Yardımcı: Alper Yıldız, Özkan Özgür
Statik Projesi: AGM Mühendislik
Mekanik Projesi: AGM Mühendislik
Elektrik Projesi: AGM Mühendislik
Proje Başlangıç Yılı: 2011
Arsa Alanı: 60.000 m2, 90.000 m²