9
9/17
Paylaş
Resmi Orjinal Boyutunda Göster
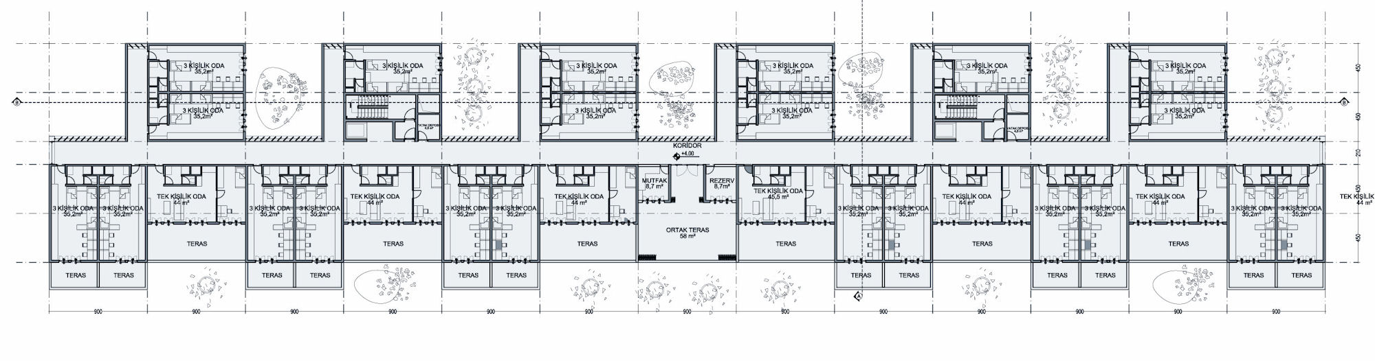
Mardin Artuklu Üniversitesi Yurt Yerleşkesi
Project Location: Mardin
Project Office: CeSa Mimarlar, AGM Mühendislik
Project Type: Dormitory / Guesthouse
Tasarım Ekibi: Murat Şahin, İbrahim Çelepöven, Yüksel Demir, Ergün Akgül
Employer: Bayındırlık Bakanlığı
Consultant: Cengiz Giritlioğlu, Orhan Hacıhasanoğlu, Gülen Çağdaş, Feridun Çılı, Nur Esin, Mehmet Ocakçı, Belkıs Uluoğlu, Yegan Kahya, Sinan Mert Şener, Leyla Tanacan, Hakan Yaman, Nurgün Tamer Beyazit, Hakan Tong, Hülya Turgut
Yardımcı: Alper Yıldız, Özkan Özgür
Structural Project: AGM Mühendislik
Mechanical Project: AGM Mühendislik
Electrical Project: AGM Mühendislik
Project Start Date: 2011
Building Plot Area: 60.000 m2, 90.000 m²