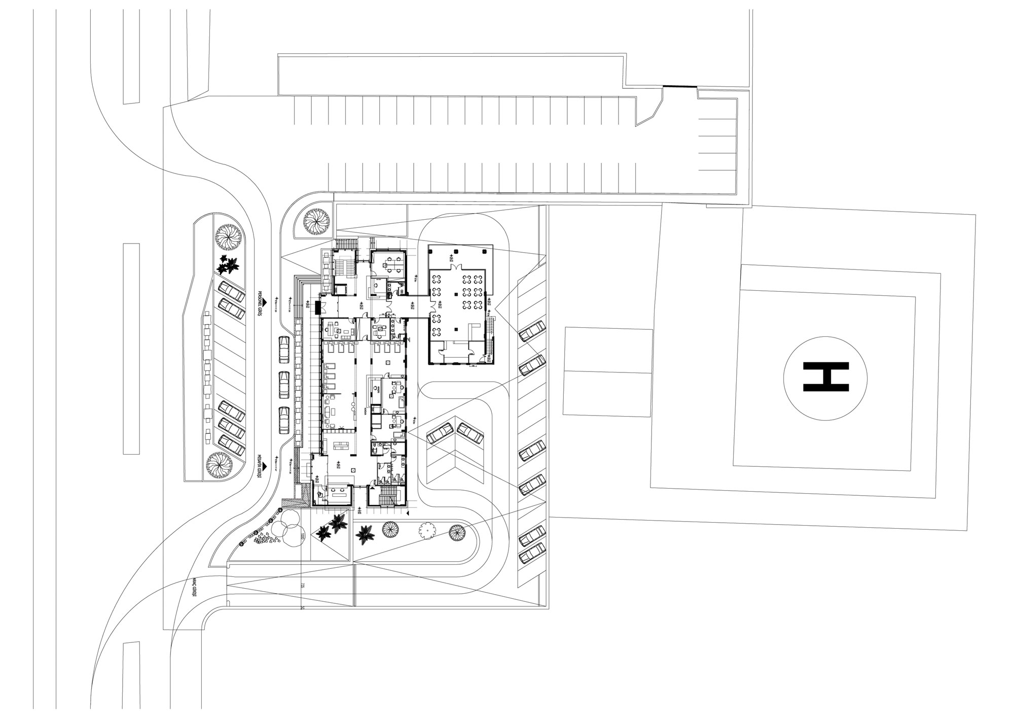
Plan
11/15
Paylaş
Resmi Orjinal Boyutunda Göster
Kızılay Kan Merkezi
Project Location: Talas, Kayseri
Project Office: Sabri Paşayiğit Architects
Project Type: Other Healthcare Buildingds
Tasarım Ekibi: Sabri Paşayiğit, Ertuğ Yenidemir
Employer: Artaş İnşaat
Yardımcı: Ece Karakoç, Fulya Bayar
Structural Project: İlmer Mühendislik
Mechanical Project: İlmer Mühendislik
Electrical Project: İlmer Mühendislik
Project Start Date: 2010
Project End Date: 2010
Construction Start Date: 2011
Construction End Date: 2012
Building Plot Area: 3.000 m2
Total Construction Area: 5.000 m²