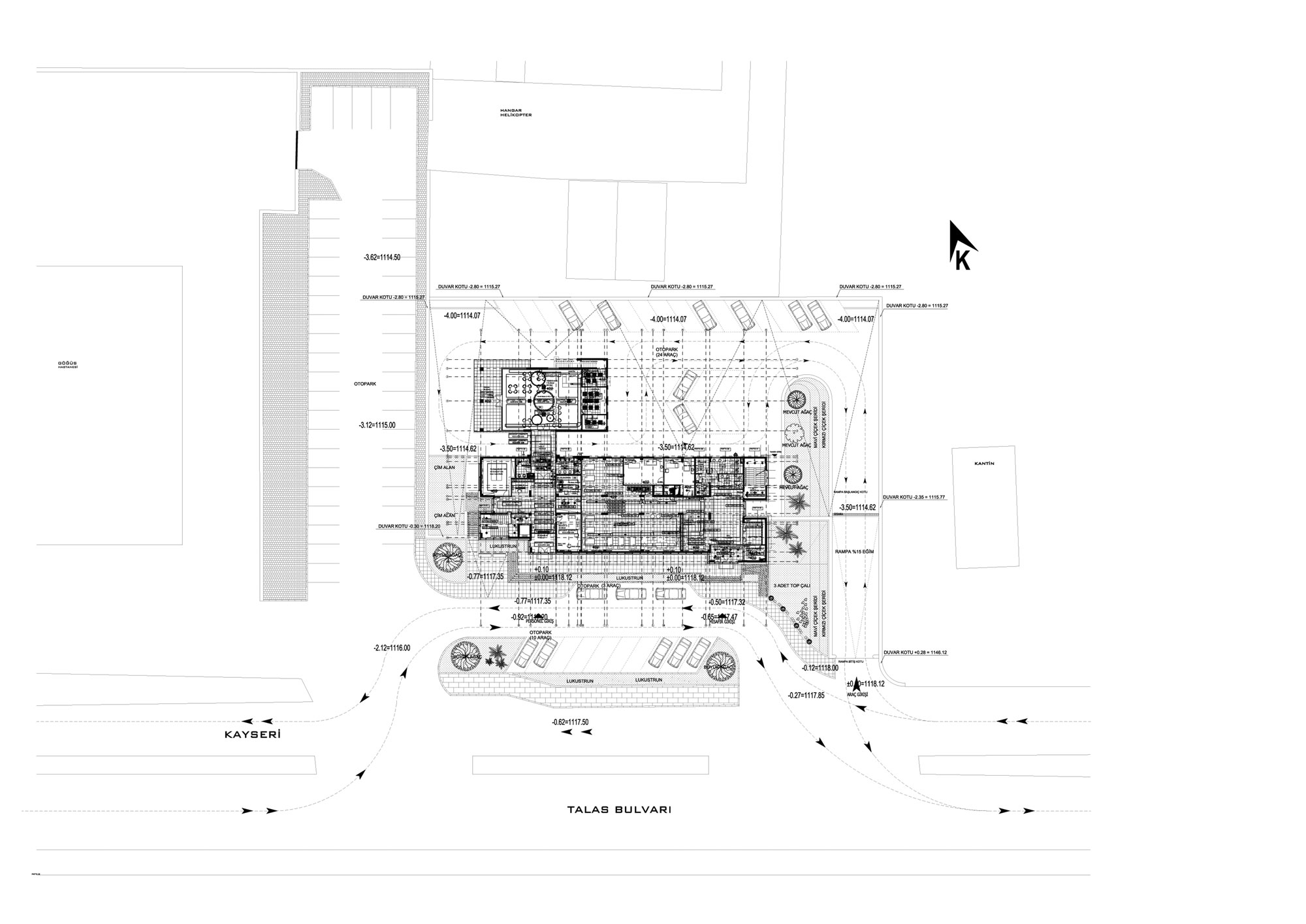
Vaziyet
15/15
Paylaş
Resmi Orjinal Boyutunda Göster
Kızılay Kan Merkezi
Proje Yeri: Talas, Kayseri
Proje Ofisi: Sabri Paşayiğit Architects
Proje Tipi: Diğer Sağlık Yapıları
Tasarım Ekibi: Sabri Paşayiğit, Ertuğ Yenidemir
İşveren: Artaş İnşaat
Yardımcı: Ece Karakoç, Fulya Bayar
Statik Projesi: İlmer Mühendislik
Mekanik Projesi: İlmer Mühendislik
Elektrik Projesi: İlmer Mühendislik
Proje Başlangıç Yılı: 2010
Proje Bitiş Yılı: 2010
İnşaat Başlangıç Yılı: 2011
İnşaat Bitiş Yılı: 2012
Arsa Alanı: 3.000 m2
Toplam İnşaat Alanı: 5.000 m²