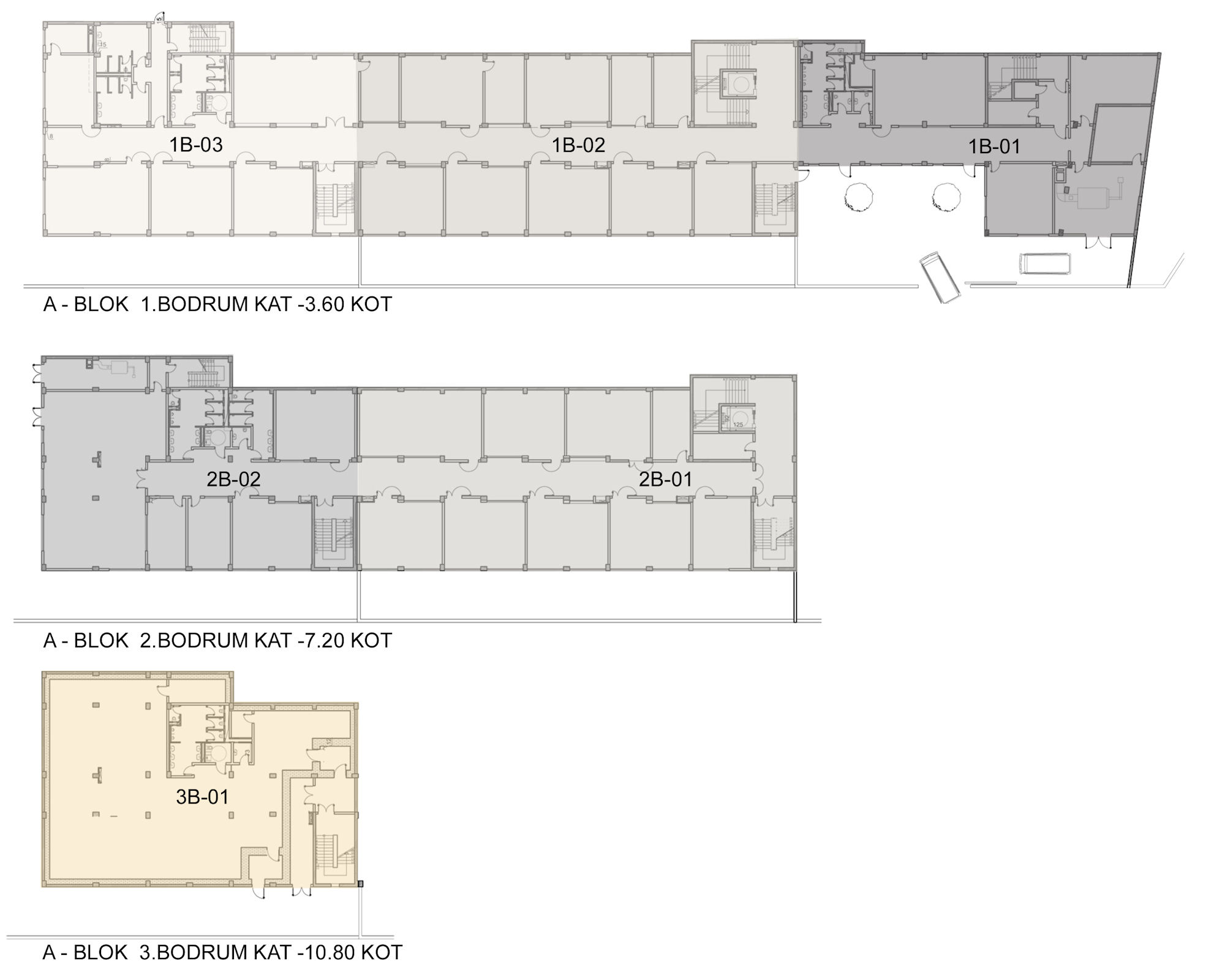
Bodrum Katlar
89/94
Paylaş
Resmi Orjinal Boyutunda Göster
Necla - Tevfik Karadavut Teknik ve Endüstri Meslek Lisesi
Project Location: İzmir
Project Office: PAO Mimarlık Tasarım
Project Type: High School
Proje Tipi Grubu: Eğitim
Tasarım Ekibi: Elif Pekin, Coşku Altuğ, Sedef Tunçağ
Employer: Süleyman Okay
Ana Yüklenici: Berberooğlu İnşaat
Interior Architecture: PAO Mimarlık Tasarım
Structural Project: Ali İhsan Çalış
Mechanical Project: Oge Mühendislik
Electrical Project: Seren Mühendislik
Construction Start Date: 2010
Construction End Date: 2012
Building Plot Area: 10350
Total Construction Area: 9230