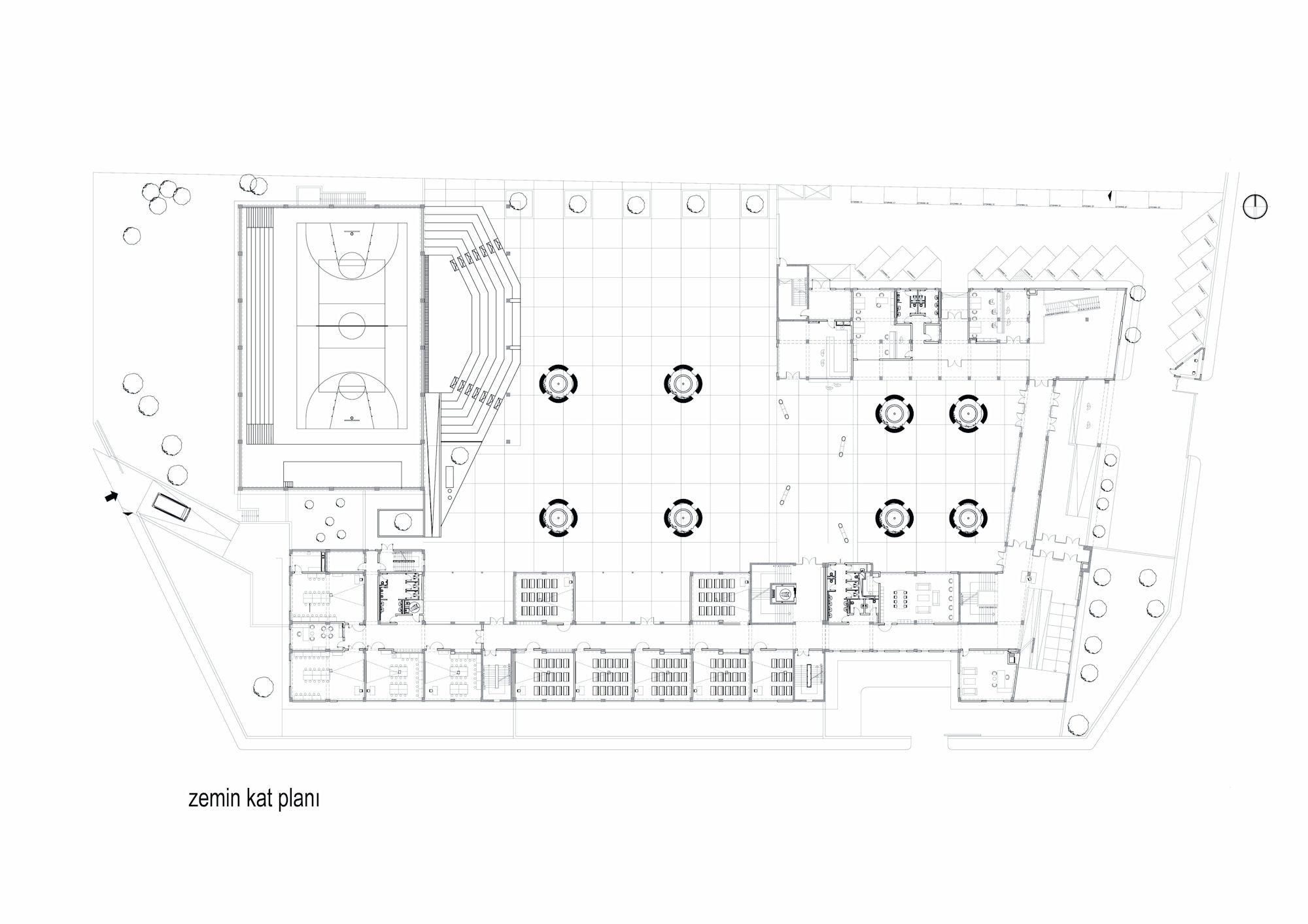
Zemin Kat Planı
90/94
Paylaş
Resmi Orjinal Boyutunda Göster
Necla - Tevfik Karadavut Teknik ve Endüstri Meslek Lisesi
Proje Yeri: İzmir
Proje Ofisi: PAO Mimarlık Tasarım
Proje Tipi: Lise / Ortaöğretim
Proje Tipi Grubu: Eğitim
Tasarım Ekibi: Elif Pekin, Coşku Altuğ, Sedef Tunçağ
İşveren: Süleyman Okay
Ana Yüklenici: Berberooğlu İnşaat
İç Mekan Projesi: PAO Mimarlık Tasarım
Statik Projesi: Ali İhsan Çalış
Mekanik Projesi: Oge Mühendislik
Elektrik Projesi: Seren Mühendislik
İnşaat Başlangıç Yılı: 2010
İnşaat Bitiş Yılı: 2012
Arsa Alanı: 10350
Toplam İnşaat Alanı: 9230