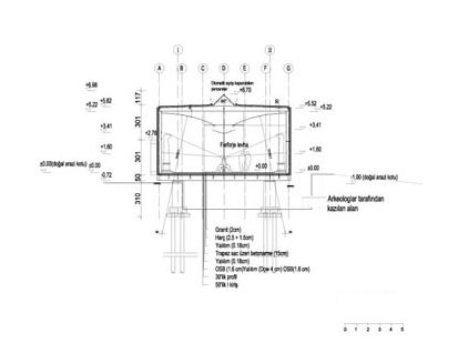
Kesit
27/31
Paylaş
Resmi Orjinal Boyutunda Göster
Afrodisyas Ek Müzesi
Proje Yeri: Karacasu, Aydın
Proje Ofisi: Cengiz Bektaş Mimarlık İşliği
Proje Tipi: Müze
Tasarım Ekibi: Cengiz Bektaş
İşveren: Geyre Vakfı
Yardımcı: Eda Erkan Altunbaş, Gülnaz Güzeloğlu, Emrah Demir
Proje Başlangıç Yılı: 2006
Proje Bitiş Yılı: 2007
İnşaat Başlangıç Yılı: 2007
İnşaat Bitiş Yılı: 2007
Toplam İnşaat Alanı: 745 m²