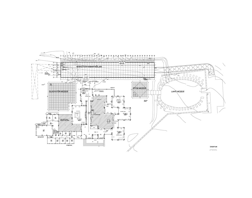
Plan
28/31
Paylaş
Resmi Orjinal Boyutunda Göster
Afrodisyas Ek Müzesi
Project Location: Karacasu, Aydın
Project Office: Cengiz Bektaş Mimarlık İşliği
Project Type: Museum
Tasarım Ekibi: Cengiz Bektaş
Employer: Geyre Vakfı
Yardımcı: Eda Erkan Altunbaş, Gülnaz Güzeloğlu, Emrah Demir
Project Start Date: 2006
Project End Date: 2007
Construction Start Date: 2007
Construction End Date: 2007
Total Construction Area: 745 m²