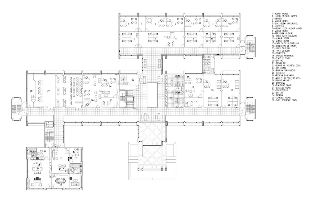
Plan
24/28
Paylaş
Resmi Orjinal Boyutunda Göster
Akfırat Belediye Binası
Project Location: Tuzla, İstanbul
Project Office: Geyran Mimarlık Atölyesi
Tasarım Ekibi: Kenan Geyran
Employer: Akfırat Belediyesi
Yardımcı: Pınar Ekinci, Kahraman Aydın, Duygu Çakır
Project Start Date: 2006
Project End Date: 2007
Construction Start Date: 2006
Construction End Date: 2007