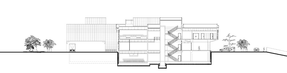
Kesit
25/28
Paylaş
Resmi Orjinal Boyutunda Göster
Akfırat Belediye Binası
Proje Yeri: Tuzla, İstanbul
Proje Ofisi: Geyran Mimarlık Atölyesi
Tasarım Ekibi: Kenan Geyran
İşveren: Akfırat Belediyesi
Yardımcı: Pınar Ekinci, Kahraman Aydın, Duygu Çakır
Proje Başlangıç Yılı: 2006
Proje Bitiş Yılı: 2007
İnşaat Başlangıç Yılı: 2006
İnşaat Bitiş Yılı: 2007