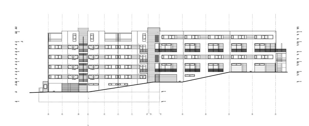
C Blok Arka Görünüş
13/32
Paylaş
Resmi Orjinal Boyutunda Göster
Tedkent Kemer 50 Evleri
Proje Yeri: Göktürk, Kemerburgaz, İstanbul
Proje Ofisi: Boran Ekinci Mimarlık
Proje Tipi: Konut Sitesi / Grubu
Tasarım Ekibi: Boran Ekinci, Evren Öztürk, Nilay Arslan
İşveren: SS Tedkent Konut Yapı Kooperatifi
Proje Başlangıç Yılı: 2004
Proje Bitiş Yılı: 2004
İnşaat Başlangıç Yılı: 2005
İnşaat Bitiş Yılı: 2007
Arsa Alanı: 6.587 m²
Toplam İnşaat Alanı: 14.120 m²