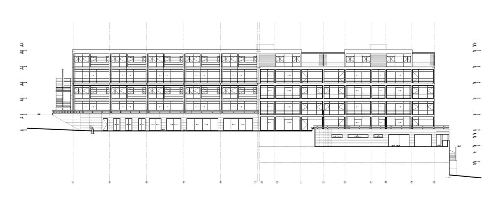
C Blok Ön Görünüş
16/32
Paylaş
Resmi Orjinal Boyutunda Göster
Tedkent Kemer 50 Evleri
Project Location: Göktürk, Kemerburgaz, İstanbul
Project Office: Boran Ekinci Mimarlık
Project Type: Housing Complex
Tasarım Ekibi: Boran Ekinci, Evren Öztürk, Nilay Arslan
Employer: SS Tedkent Konut Yapı Kooperatifi
Project Start Date: 2004
Project End Date: 2004
Construction Start Date: 2005
Construction End Date: 2007
Building Plot Area: 6.587 m²
Total Construction Area: 14.120 m²