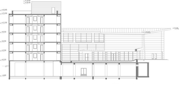
Kesit 2-2
10/16
Paylaş
Resmi Orjinal Boyutunda Göster
TC Maliye Bakanlığı Ankara Maliye Kursu Ek Binası
Project Location: Ankara
Project Office: Uz Mimarlık Atölyesi
Project Type: Other Public Buildings
Tasarım Ekibi: Mete Öz, Mehmet Soylu, Ümit Öz
Employer: Bayındırlık ve İskan Bakanlığı Yapı İşleri Genel Müdürlüğü
Project Start Date: 2001
Project End Date: 2001
Construction Start Date: 2005
Construction End Date: 2007
Total Construction Area: 60.000 m2