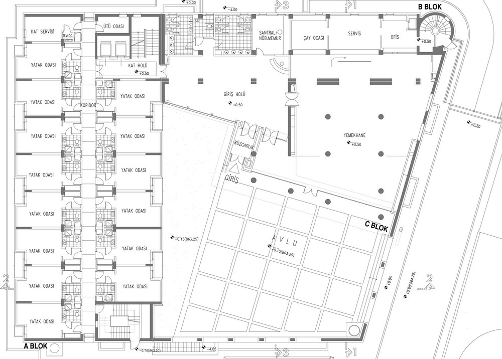
Zemin Kat Planı
5/16
Paylaş
Resmi Orjinal Boyutunda Göster
TC Maliye Bakanlığı Ankara Maliye Kursu Ek Binası
Proje Yeri: Ankara
Proje Ofisi: Uz Mimarlık Atölyesi
Proje Tipi: Diğer Kamu Yapıları
Tasarım Ekibi: Mete Öz, Mehmet Soylu, Ümit Öz
İşveren: Bayındırlık ve İskan Bakanlığı Yapı İşleri Genel Müdürlüğü
Proje Başlangıç Yılı: 2001
Proje Bitiş Yılı: 2001
İnşaat Başlangıç Yılı: 2005
İnşaat Bitiş Yılı: 2007
Toplam İnşaat Alanı: 60.000 m2