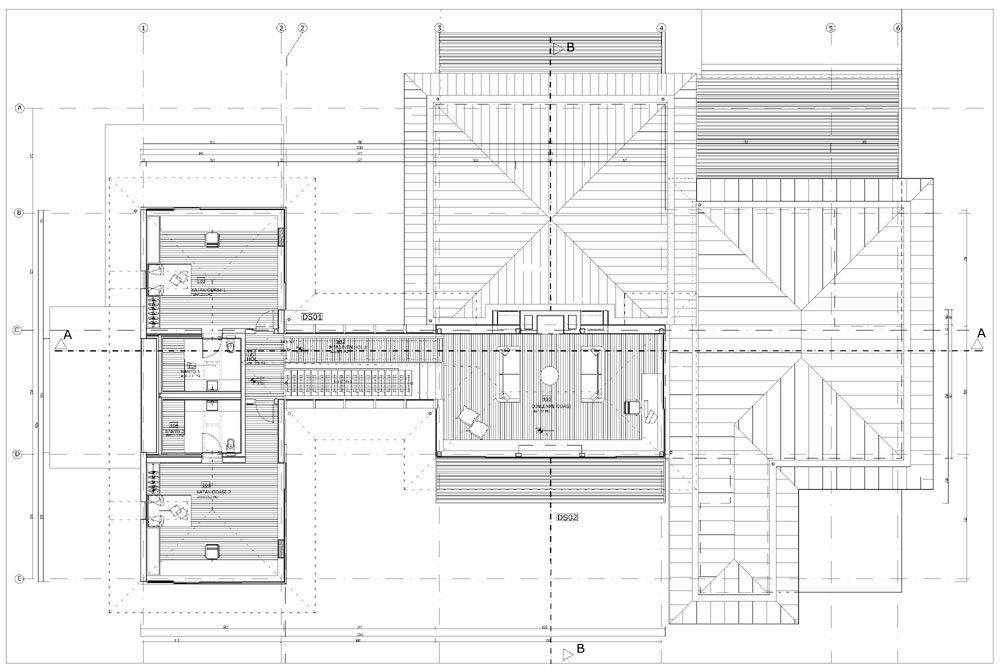
Plan
15/17
Paylaş
Resmi Orjinal Boyutunda Göster
Kemerburgazda Bir Ev
Proje Yeri: Kemerburgaz, İstanbul
Proje Ofisi: Uras X Dilekci Mimarlık
Proje Tipi: Tek Ev / Villa
Tasarım Ekibi: Durmuş Dilekci, Emir Uras
İşveren: Deniz - Turgay Huysal
Yardımcı: Ayça Kadıoğlu, Sinan Paker
Proje Başlangıç Yılı: 2004
Proje Bitiş Yılı: 2005
İnşaat Başlangıç Yılı: 2005
İnşaat Bitiş Yılı: 2007
Arsa Alanı: 5.600 m²
Toplam İnşaat Alanı: 520 m²