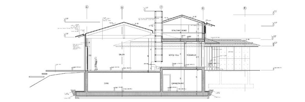
Kesit
17/17
Paylaş
Resmi Orjinal Boyutunda Göster
Kemerburgazda Bir Ev
Project Location: Kemerburgaz, İstanbul
Project Office: Uras X Dilekci Mimarlık
Project Type: Single House
Tasarım Ekibi: Durmuş Dilekci, Emir Uras
Employer: Deniz - Turgay Huysal
Yardımcı: Ayça Kadıoğlu, Sinan Paker
Project Start Date: 2004
Project End Date: 2005
Construction Start Date: 2005
Construction End Date: 2007
Building Plot Area: 5.600 m²
Total Construction Area: 520 m²